リタイヤした平凡な図面屋です。仕事から解放されて日々のんびり気楽に暮らしてます。そんな奴が好き勝手書いてます!

| ■サイズ | ■仕様 | |
| W600×D600×H1000〜1300 図面参照 | 支柱:スチール角パイプ焼き付け仕上げ 傾斜ハンガー:スチール角パイプクロームメッキ仕上げ ベース:木工化粧板仕上げ ベースフレーム:スチール角パイプクロームメッキ仕上げ | |
| ■備考 | ||
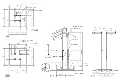
この作図事は、卍型に構成された傾斜ハンガーラックの姿図および詳細図です。
上から見た際に4方向にアームを伸ばす構造で、それぞれが傾斜ハンガーまたは水平ハンガー(パーツの入れ替え)として使用できるフレキシブルな設計が特徴です。
支柱にはφ25.4の可変パイプを使用し、パイプ外観の劣化を防ぐためにクロームメッキ仕上げとしています。
可変パーツにはローレットビスを用いた高さ調整機構を採用していますが、図中でも示されているように、
あらかじめ支柱に貫通穴を開けて段階的に高さ調整できるようにすれば、ビスによる締め傷を抑えることも可能です。
続きをご覧ください!
応援、宜しくお願いします!
↓ ↓ ↓![]()
デザインランキング![]()
にほんブログ村