リタイヤした平凡な図面屋です。仕事から解放されて日々のんびり気楽に暮らしてます。そんな奴が好き勝手書いてます!

| ■サイズ | ■仕様 | |
| W1500×D175×H2650 図面参照 | サッシュ:スチール角パイプ黒皮+ブラッククリア仕上げ スクリーン:t=8ガラス+飛散防止フィルム貼り | |
| ■備考 | ||
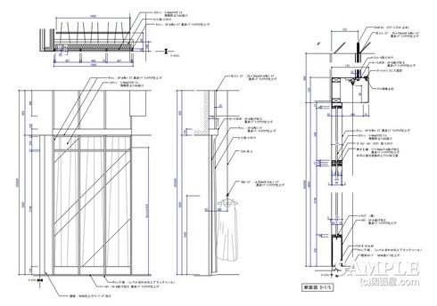
【作図解説】
今回の作図事例は、店舗ファサードを構成するガラスサッシュの姿図と断面図になります。
ショップの間口に配置されることで、「魅せる場」の役割を持ち、店舗の顔としてサインや切り文字を貼るケースも多いです。
構成としては、できるだけガラス面を大きく見せるために、サッシュの見付を抑え、軽い印象になるよう設計されています。
また、演出用として裏面にカーテンを吊るため、サッシュと同素材でカーテンボックスを製作し、全体の見え方に一体感が出るようまとめています。
メンテナンスについては、カバーをローレットビスで固定し、現場で簡単に脱着できるよう配慮されています。
それでは、続きをご覧ください!
応援よろしくお願いします
↓ ↓ ↓![]()
デザインランキング
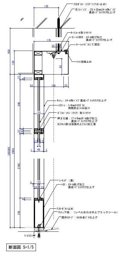
【作図ポイント】
断面図を見ると、サッシュまわりは細かい部材が多く、見付寸法と内側寸法のバランス取りが重要になります。
特にカーテンボックスはサッシュと同素材で作るため、ラインが乱れないよう寸法調整が欠かせません。
また、ローレットビスによるカバー固定は、サインの貼り替えや清掃などがしやすい実用的な仕様です。
下部のレベル合わせやブランクシールによる処理も丁寧に描き分けられており、施工時の判断材料としても役立つ内容になっています。

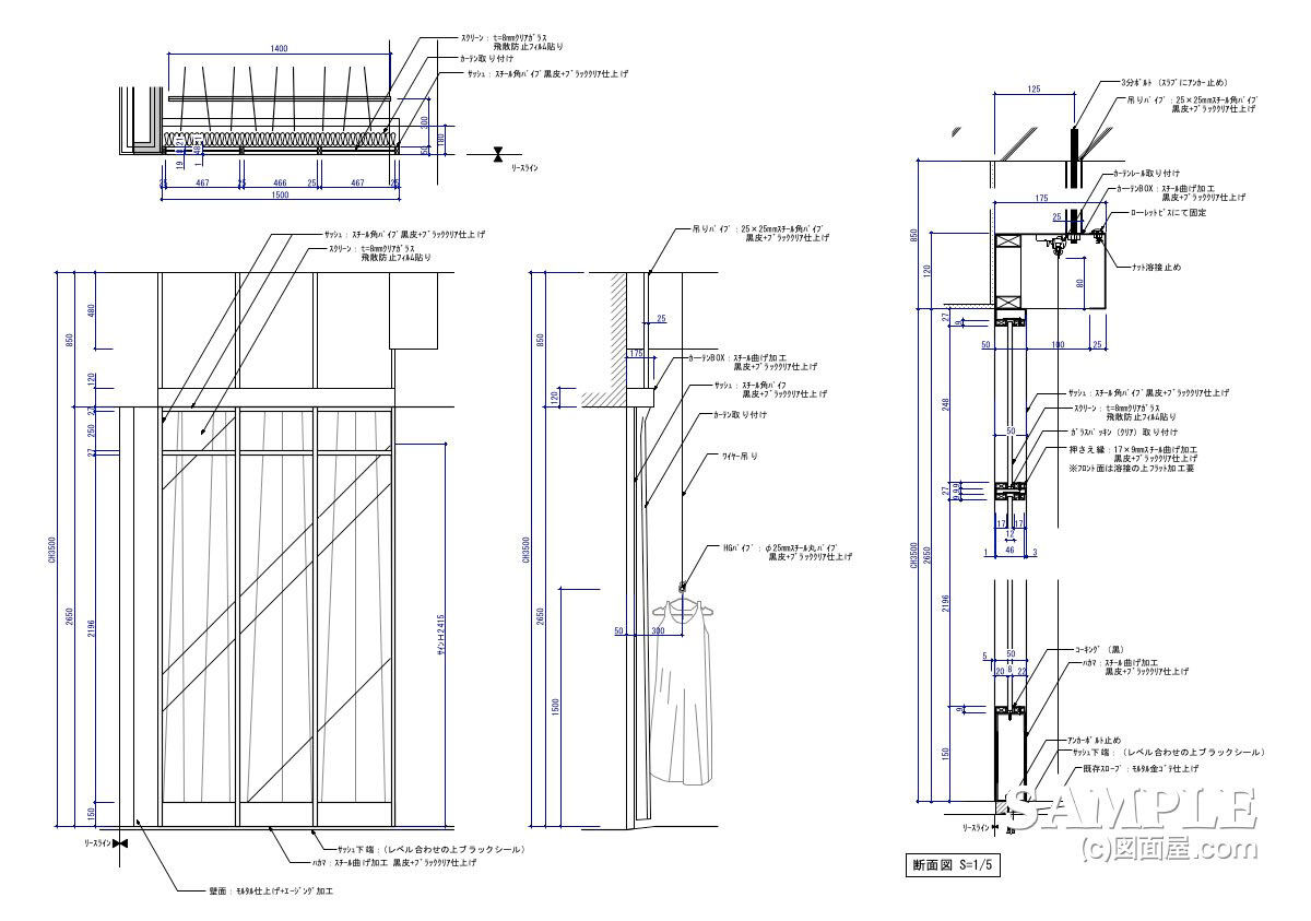
【私感として】
ファサードでは店舗の印象を左右する大事な要素で、サッシュの見付やラインの取り方ひとつで“顔つき”が変わってしまいます。
この事例は、サッシュ・カーテンボックス・背面処理の一体感がよく整理されていて、過度な装飾に頼らず、すっきりと上品なファサードになる設計だと感じました。
カーテンを使った演出も効果的で、店内の雰囲気を外へやわらかく伝える良いアクセントになっています。
細部の納まりやメンテ性も考えられており、応用しやすいショーウインドの基本事例として参考になる図面だと思います。
是非、参考にしてください!
応援よろしくお願いします
↓ ↓ ↓![]()
デザインランキング![]()
にほんブログ村