リタイヤした平凡な図面屋です。仕事から解放されて日々のんびり気楽に暮らしてます。そんな奴が好き勝手書いてます!

| ■サイズ | ■仕様 | |
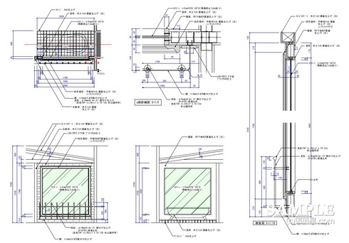
| W2090×D990×H2220 図面参照 | 壁面:LGS+PB下地ブリックタイル仕上げ 枠/面材:木工ラッカー塗装仕上げ スクリーン:t=5クリアガラス+飛散防止フィルム貼り 柵:スチールパイプ焼き付け仕上げ | |
| ■備考 | ||
【作図解説】
本事例は、店頭のショーウィンドを「商品を並べる箱」ではなく、一つの空間として成立させることを意図した作図例です。
間口2000mmのブリックタイル壁に大きな窓を設け、ショーウィンド全体を“部屋の一面”として扱っています。想定しているのは、少し古風なマンションの一室。
ウィンド内にはタイル貼りのステージを設け、洋風のバスタブをオブジェとして配置し、バスルームのワンシーンを切り取った構成だと感じます(想像)。
商品単体ではなく、背景や小物を含めた情景として見せることで、ショーウィンド自体の訴求力を高めています。窓枠は木製の四方枠とし、ラッカー塗装仕上げの上、既製の装飾面材(サンメント)を取り付けています。
また、前面に設けたスチール製の柵は、すべて溶接組み立てとし、壁面へビス固定しています(a部詳細図参照)。
それでは続きをご覧ください!
応援よろしくお願いします
↓ ↓ ↓![]()
デザインランキン
【作図ポイント】
この事例のポイントは、構成そのものよりも「寸法の決め方」にあります。特に重要なのは、ブリックタイルの割り付けとサッシュ寸法の関係です。
タイルに中途半端な割りが出ないよう、先に割り付けを整理したうえで、サッシュサイズを決め込んでいます。
また、柵や枠といった要素は装飾的ではありますが、納まり自体は極力シンプルに整理しています。
装飾を足す場合ほど、構造や固定方法は素直にしておく方が、全体のバランスは崩れにくくなります。
【ここは押さえろ!】
以下、部分詳細図と断面詳細図の拡大版です。是非覚えておいて欲しい箇所です。

【その他・私見】
このショーウィンドは、意匠を強く主張するというより、「情景を成立させるための条件」を積み上げた構成だと感じます。
四方枠だけの一般的なウィンドに比べ、壁の仕上げや柵といった要素を加えることで、空間の奥行きと物語性が生まれています。
一方で、こうした演出は一歩間違えると“やりすぎ”になりがちです。
今回の事例では、装飾点数を抑え、素材と寸法関係を整理することで、ウィンド全体が落ち着いた印象にまとまっています。
魅せ場を作るというより、シーンの邪魔をしない設え、という表現が近いかもしれません。
【まとめ】
本事例は、ショーウィンドを「商品陳列の場」ではなく、「一つのシーンを切り取る装置」として扱った作図例です。
構成自体は複雑ではありませんが、割り付けや寸法の決め方、装飾要素の扱い方に設計意図がはっきり表れています。
演出系のウィンドを考える際の、ひとつの基準として参考になる事例だと思います。