こんにちは、ま〜です。
今日は、店舗のアイキャッチャーとしての必要不可欠なショーウインドについて話しましょう。
大きい、小さいは別としてやはり、ショーウインドは必要かと感じます。
以下にその代表例を挙げていきますので、勉強したい方はしっかり覚えておいてください。

まず、一般的なというかよくお店に行くと、よく見かけるショーウインドウです。
みなさんもどこかで目にしたたことのあると思います。
最初は極々シンプルなウインドウですが、きゃしゃな感じがちょっと不安感を感じさせます。
が、展示されている商品は、よく見えることだけは確かです。
あまりパッとしないいので、おすすめは出来ません。
バックパネルとL字のガラススクリーンで構成で至ってシンプルですが、昔はどちらの店頭にも設置されたシロモノです。
しかし、最近ではあまり見なくなっています。(時代が違うな!)
ちょっと安っぽい造りなので、かなり昔の図面だとも感じます。
しかし、初心者の方にはショーウインドの作図練習には良いと考えますので、図面屋を目指すあなた!
描けますよね?
次に、これもパッとしませんがトラッドショップでは相変わらずこのパターンです。

これは、最初のウインドウに比べるとかなり進化しています。
というよりウインドウって感じがしっかり描かれていますし、存在感のあるステージが付いてます。
また、内側の腰にストック機能を持たせています。
今思えば、なんで?って感じもしますが、これも20年以上間の図面です。
ガラススクリーン上部のフレームが木製なので補強が必要な場合もあります。
それでは、続きをご覧ください。
頑張ってます!↓ ↓ ↓
デザインランキング
にほんブログ村
●スポンサードリンク

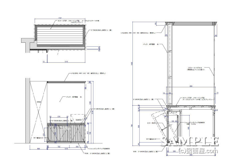
ショーウインドウと言うよりも、ディスプレーショーケースのようにもとれますね。
サイズが小さすぎます。
まあ、ボディやマネキンによる普通のディスプレーに比べると、やはりガラスを1枚通して見るショーケースではグレード感が全く違います。
規模が小さいショップでショーウィンドを確保するスペースがないケースでも使えるショーケースですね。ただ結構なコストがかかります。
構造も簡単で天地で固定するサッシュと同じ考え方ですが、上部のFBを溶接組みしたルーバーは塩ビの既製品でも十分代用が可能です。

この作図は、とてもシンプルで大きな、またムードづくり出来る大型ウインドの事例です。作図右にかなりややこしいのが見えますが、このあたりは、気にしないで姿図だけをしっかり理解して下さい。
要は、納めをかなり意識した図面となりますが、初心者のみなさんには、今後このような図面をしっかりお目にかけますから楽しみに!
やはり、カタチからではありませんが、ウインドとはなんやねん!というところだけを意識してください。覚えてください。
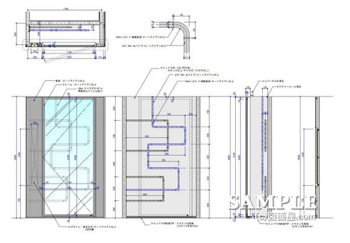
このショーウィンドもシンプルですが、ウィンド内にハンガーパイプとエルボをジョイントして商品を掛けない時でも一つの意匠として見せるように意識しています。確か、高級店だったと思います。
ある意味、面白さを感じさせますし、躍動感も感じるので、顧客の目にはとまりやすく、アイキャッチャー的なウインドウとなるでしょう。個人的には好きなパターンです。
ある意味、面白さを感じさせますし、躍動感も感じるので、顧客の目にはとまりやすく、アイキャッチャー的なウインドウとなるでしょう。個人的には好きなパターンです。
前面のメンテ用建具はスチールの曲げフレームにクリアガラスのFIXで、左側のサインはスチールの抜き文字で文字だけが光るようにしています。
今回は、これで終了とします。次もショーウインドをいくつかご紹介しますので、楽しみにしてください。それでは、長々とお付き合いありがとうございました。純恵でした。
頑張ってます!↓ ↓ ↓
デザインランキング
にほんブログ村