| ■Data NO. |
| ■サイズ | ■仕様 |
| W2555×D518×H500 | 本体:化粧板仕上げ t=8mmクリアガラスFIX |
■備考
|
今回ご紹介するのは、『壁面埋込型ショーケース』です。
どこでもよく目にするショーケースなので、なじみはあるかと考えます。
特に目にするのは、商業施設の共有通路、JR駅構内、はたまた大学の通路などで見かけられます。
とても汎用性があるので、是非ご自分のアイデアとしてください。
昔、一生懸命に描いた内容はかなり濃いめとなってますのでしっかり覚えておくようにしてください。
一般の店舗では、ここまでは使用できないので、サイズ変更や簡素化するならば、とても汎用性があるので、アレンジ次第かな>?
それでは、次に進めていきましょう。
続きをご覧下さい。
頑張ってます!↓ ↓ ↓
デザインランキング
にほんブログ村
●スポンサードリンク
作図自体は、シンプルで簡単そうには見えますが、じっくり観察していると意外に厳しいかもしれません。
まず、
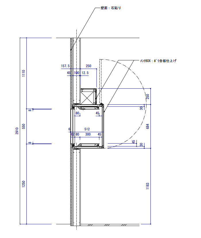
断面詳細図をご覧下さい。

この場合、向かって左が共用通路で、右が店内です。
店内といっても、この出っ張りはきついので、おそらく店舗のバックヤードと思います。
このショーウインド、正面図(立面図)を見るとワイドが
1950mm。高さが
500mmで、実際に商品を展示する空間は、かなりの横長!
長いショーウインドだけに、
リズム感のあるディスプレーが求められますね!
私も過去に、このようなショーケースをメンズショップで描きましたが、そのときは具体的な商品ではなく「男のライフスタイル」をこの狭い空間に表現しましたが、けっこう受けましたね。例えば、ブリキのおもちゃ、アンティークなグッズなどです。
メンズショップだけでなく、他のカテゴリーでも対応できると考えます。
最後に、今回はここでいったん中断します。
というのも、先輩にいただいた施工図のチェックがまだなんです。(ご容赦を!)
ですから、「その1」としたわけです。
読者の方には、今回の平面図、立面図、それの断面詳細図をしっかり理解してもらいたい!
そうすれば、「その2」の理解は早くなると信じます。
頑張ってください。素晴らしい図面屋には近道はありません!
頑張ってます!↓ ↓ ↓
デザインランキング
にほんブログ村