
■サイズ
| ■仕様 |
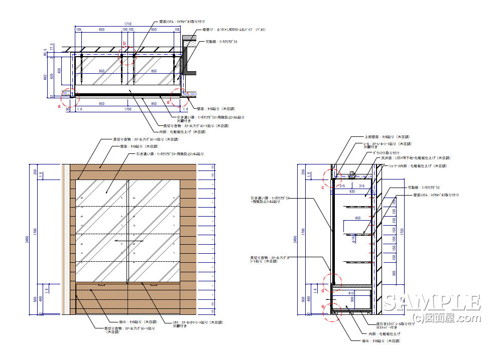
W1700×D630×H2450 図面参照 | 壁面:タイル貼り(木目調) 内部:化粧板仕上げ 引き違い扉:t=8クリアガラス |
■備考 ★ |
ショーケースは、数あれど今回の事例はちょっと珍しいものです。
壁面収納型のハイケースなのですが、恐らくスーパーブランドの壁面で
バッグ等の陳列ケースとしてよく使われるタイプの事例です。
壁面がタイル貼りなので、ちょっと厄介ですが、そこは
スチールLアングルの見切りとショーケースの
ガラス引き戸枠を兼用しています。
ひとつの什器として製作できれば、もっと簡単な納めも出来たのですが・・・・・・。
造作との絡みは、けっこう大変でしたね。
それでは、
続きをご覧ください。
●スポンサードリンク厄介だったのは、
H=1700mmもあるガラスの引き違いのガラス扉なんですよね!重量もかなりあるので、納めにも時間がかかりました。
結果、戸車付きのハカマで納めることを思いつき、作図を進めることにしました。ここで、
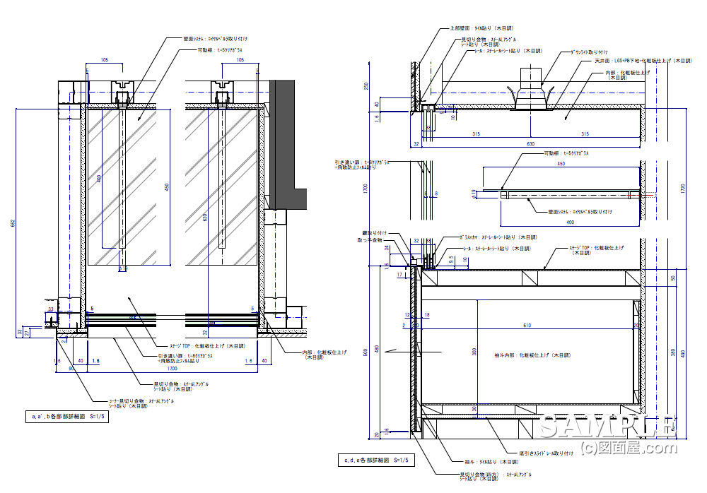
平面詳細図と縦断面図の拡大図を見ていただきましょう。

内部は、前述したように造作壁にロイヤルのベルラ(旧ニートモジュール)を使用して、可動棚を取り付けることとしました。
可動棚については、
ダボかスリットにするのが一般的ですが、見栄えが良くないのと商品が高級とあって、コストはかかりますがこのような結果となりました。
腰部は抽斗を設けましたが、壁面と同仕様にしているので取っ手の位置には悩みましたが、なんとか作図のようには納まりました。
単品什器として工場で製作し、それを壁面に納める方が良かったと感じます。これじゃメンテも大変ですからね!
たまに、こういった難題が降りかかってくることがあります。
しかし、対応に遅れては図面の納期も当然遅れてしまいますので、普段から多くの資料をためておくことにしています。
要は、
図面の引き出しを多く造るってことです。出来れば、カテゴリーごこに整理できれば言うことはありません。誰もが即座に作図出来るわけではありません。
作図の早さは資料の多さと経験を積むことです。