こんにちは、ま〜です。
さて今日は、先回からの続きで『ファサードを演出するショーウインドを考える!』の最終回です。
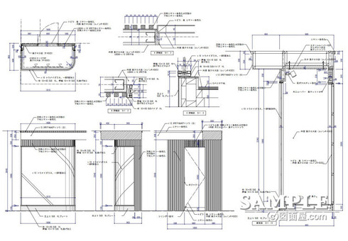
上の図面は、過去にトラッドショップを手掛けたときに描いた作図です。
若干、重い感じがトラッドショップの定番であって、概ね昔からこの感じが主流でした。
リブ材が、目立ちますがこのリブ材って、今でも人気の素材です。
特に什器の腰などに多く使われています。
例えば、什器の腰ってほとんどが「ペタッ」って感じで変化が無い時の、逃げワザでデザイナーはよく使います。
過去の私もそうでした。
ただ、今回の作図事例は、この素材を天地で使ってるので、やっぱり重い感じが出過ぎです。
逃げワザではありますが、カラーリングをライトな感じで行けばOKじゃないですかね。
頑張ってます!↓ ↓ ↓
デザインランキング
にほんブログ村
●スポンサードリンク
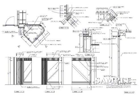
この作図も、前述のトラッドショップの別エリアに造作したウインドウです。
先ほどとはウインドウのサイズがかなり小さくなっています。
ですからピンポイントディスプレイとしての役割を担います。
かなりの古さを感じるウインドですが、最近はまた復活しているようです。
スーパーブランド系の店舗は必ずこういった、ボックスタイプのウインドウが多く見られます。一例として止めておいてください。
また、個性的ですから実際には汎用性もあまり感じられません。

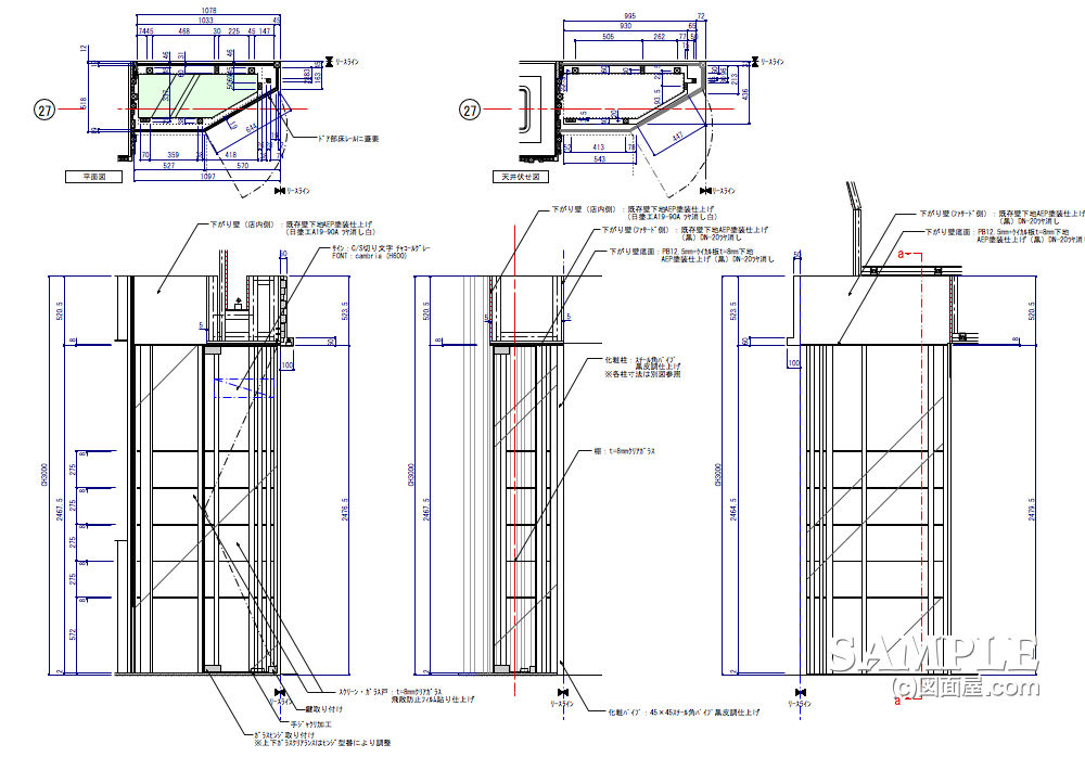
これは、大がかりなショーウインドです。
スチールパイプ組みをした中に、商品棚を設けそこに、この店舗の主力商品を展示するウインドウです。
見た目には、インパクトはありますが、私的には好めない箇所が多くあります。
まず、ウインドないの棚は、変更しにくく、その他メンテナンスも難しいと考えます。
きっと、かなり個性のあるショップなのでしょう。
実際、内のスタッフが実施設計したようですが、私は記憶がありません。
以下の作図もかなり個性があるので、「こんなんも、あるンや!」程度に見ておいてください。
私もかなりの量の店舗図面を描いてきましたが、ほんと珍しいウインドウでした。

楕円形のショーウインド。こちらもあまり目にしたことはないと感じます。
が、アイデアとしては、面白みを感じます。
好きですね、こういうのって!
間延びしそうな店舗内空間を、引き締めてくれるウインドでもあります。
出来れば、店頭に並べるのもよいと考えます。
ただ、重量がかなり有るので、店内スタッフはレイアウトの変更は嫌がるでしょう。上品さと優しさが感じるので、レディス、それも高級品を扱うアパレル店では、喜ばれる逸品です。
実際は、ワールドのショップでの展開でした。
今回で、ウインド集は、一旦終了ですが、資料はまだまだ多くあります。
ですから読者の方が、希望するウインドの形状、フォルムが有ればお教えください。
出来るだけ、それに添った内容を探してもよいと考えます。では、純恵でした。
頑張ってます!↓ ↓ ↓
デザインランキング
にほんブログ村