リタイヤした平凡な図面屋です。仕事から解放されて日々のんびり気楽に暮らしてます。そんな奴が好き勝手書いてます!

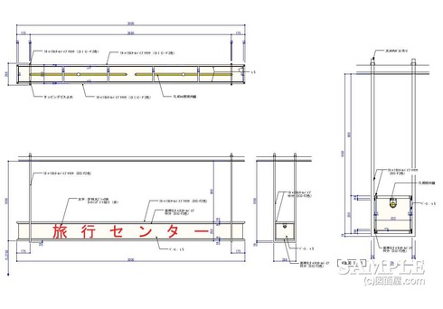
| ■サイズ | ■仕様 | |
| W3000×D288×H1069 図面参照 | フレーム:19×19スチール角パイプ焼き付け仕上げ 盤面:t=5乳半アクリ サイン:カッティングシート切り文字 | |
| ■備考 この吊り行灯サインで使用している鋼材は下記を参照下さい。 ⇒鋼材表【スチール 角パイプ】 | ||
ま〜
図面屋ま〜では、若き同業者の方々のお役に立てるよう、今まで描き続けてきた図面資料やデザイン資料などをお伝えしております。 ただ、掲載している作図資料はあくまで資料であり、全ての店舗や施工に当てはまるものではありません。ですから、参考程度の資料とお考えください。
Powered by ライブドアブログ
