
■サイズ
| ■仕様 |
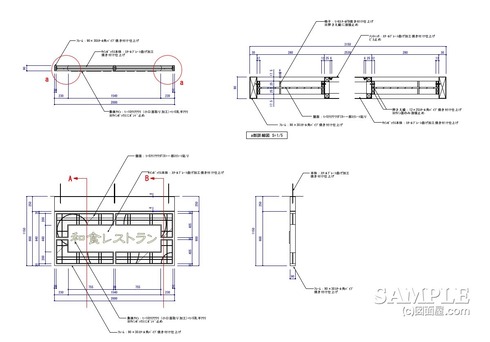
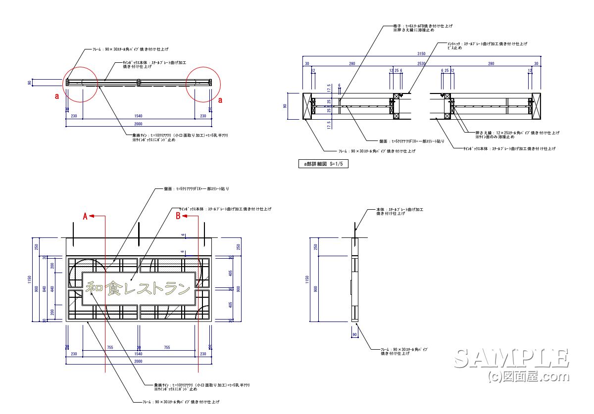
W2000×D90×H1500 図面参照 | サインボックス本体:スチールプレート曲げ加工焼き付け仕上げ
象嵌サイン:t=10クリアアクリ(小口面取加工)+t=5乳半アクリ※サインボックスにボンド止め |
■備考
作図日:2015.11
環境設計:環境カテゴリーサイン |
【作図解説】街を歩いているときに、
興味深いサインを見つけらのでちょっと
アレンジをして図面を描いてみました。一見しただけだったのでスケッチを描いて、すぐに持ち帰り作図をはじめたのですこれが、これが意外とややこしくて作図に3時間もかかってしまいました。
おかげで昨日の休暇は確実に仕事モードでしたね!(笑)しかし、良い図面事例が出来ましたので、ご披露したわけです。
象嵌サインは、もう珍しくはありませんが、初心者の方には良い参考事例となると思いますので、お勉強のつもりで見てください!
続きを・・・・・。
応援よろしくお願いします ↓ ↓ ↓
デザインランキング
●スポンサードリンク以下の作図をご覧下さい。もちろんデザインは私がしたのですが時間が無かったのもあってこの程度です。
お許しを!
【作図ポイント】和食レストランでこのデザインは考えられないかとは感じますが、
この部分だけをアレンジすれば、オリジナルサインが完成します。
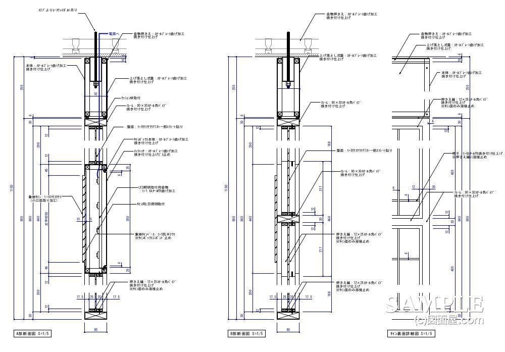
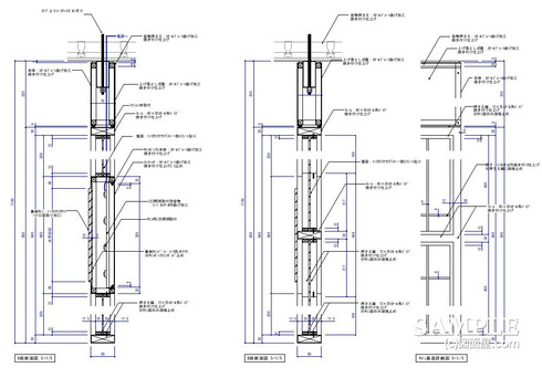
上記は、それぞれの断面詳細図2面と右端の展開詳細図ですがご理解いただけますか>?
見ただけなので、収めは自己流となりますが、これで問題なく収まるはずです。作りはかなり複雑ですがひとつづつ紐解きをすれば、必ず理解できるはずです。
ちょっとしんどいと感じてもあきらめずに理解してください!
私の場合、街中へ出るときは必ずスケッチブックをもって出ます。というのも街にはデザインされて構造物やサインが氾濫しています。
ですから、
これは良いと感じるものがあれば、必ずラフスケッチを描いて、その後に図面を描くようにしています。若かりし頃は、一枚描くのに終日かかりましたが、このトレーニングのおかげで収めもっkあり考えられるようになりました。
最初は大変でしたが、スケッチが溜まり出すと面白くなって自分の作品集等を作り若い子にプレゼントしたものです。
図面屋を目指すのでしたら、私のようなやり方でも充分に役立ちますので、真似ってみては如何でしょう。
外見の姿図は理解できても、収めを考えるのは並大抵のことではありません。しかし、これが勉強になるのです。純恵でした。
応援よろしくお願いします ↓ ↓ ↓
デザインランキング