■サイズ
| ■仕様 |
W997×D51.5×H1679 図面参照 | フレーム:t=3 SUS FB HL曲げ加工 盤面:t=3クリアアクリ+t=5半透明シート +t=3乳半アクリ挟み込み
|
■備考 作図日:2016.09.11 業態:高級メンズアクセショップ |
【作図解説】
今回は、SCテナントや外向き店舗でよく見かけるコルトンボックス(いわゆる行灯サイン)の作図事例です。
形状そのものは非常にシンプルなのですが、意外と細部の納まりを理解しないと描けない箇所が多く、過去に私の塾生がここでつまずいていたことを思い出し、あらためて取り上げることにしました。
光源の入れ方やアクリの保持方法、枠の組み方など、見た目以上に
“描けそうで描けないポイント”が潜んでいるのがコルトンボックスの特徴です。
そこで今回は、どこがどう処理されているのかを、拡大図を使いながら順を追って説明していきます。
それでは続きをご覧ください!応援よろしくお願いします ↓ ↓ ↓
デザインランキング
●スポンサードリンク
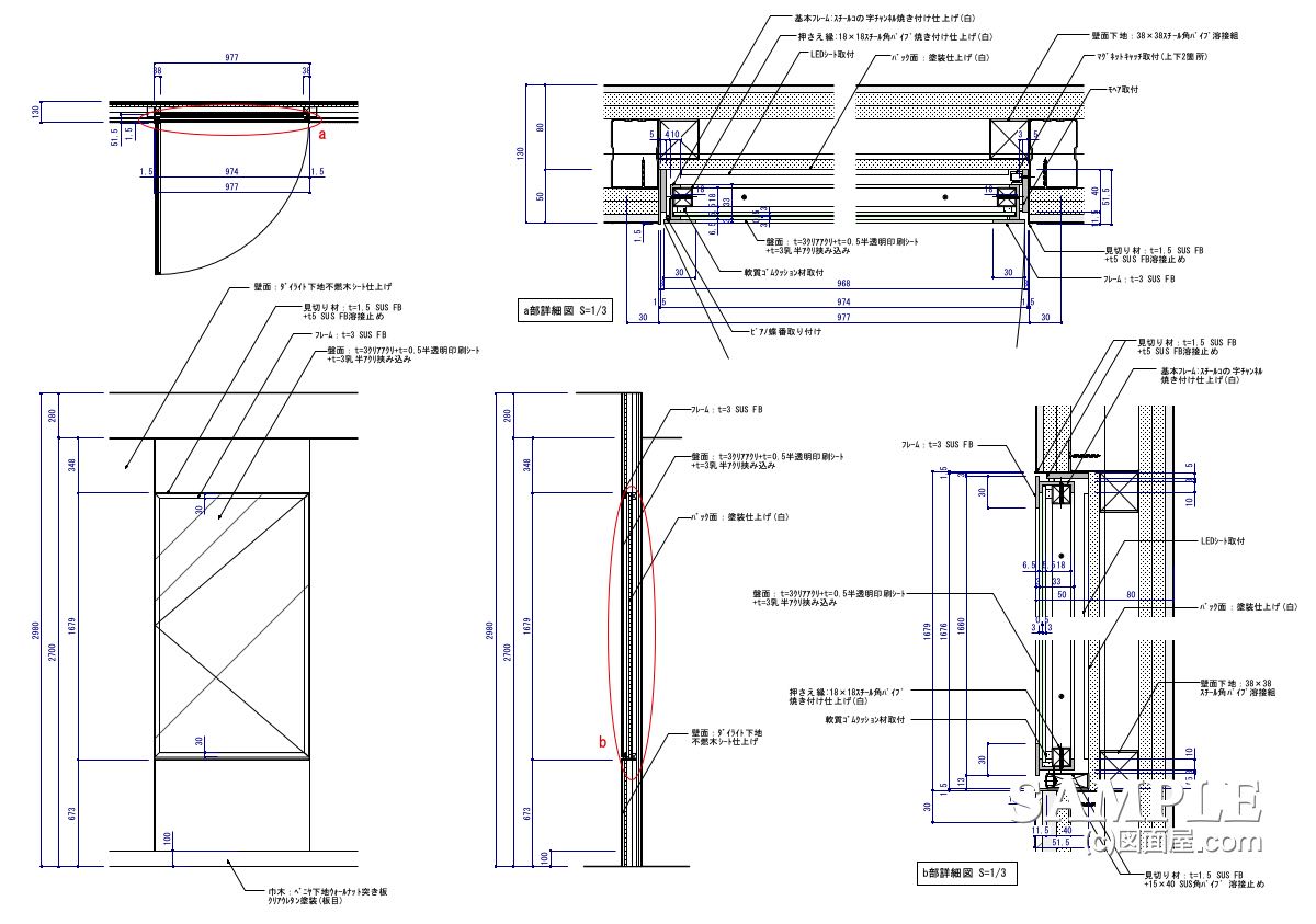
【作図ポイント】さて、下の図面は1枚目の
a詳細図を見やすいように拡大してみました。

中央部を端折ってますので、ちょっと貧弱に見えますがしっかり描けています。
ちなみに、ほとんどの壁面に付く行灯サインやコルトンボックスは、この納めで十分です。
奥行きが、
50mm強で納まってしまうのですが、昔では考えられないことですね。LEDの進化がこういったところにも現れています。
これに限らず、棚板照明、店内の間接照明も同様です。左吊り元での開閉は、メンテやコルトン入れ替えにも重宝します。まあ、頻度は無いにしろこういう納めが順当と考えました。
一見、初心者の人にとっては厳しい作図となってますが、なんちゃないですよ! ひとつずつゆっくりと理解して貰えれば描くことは問題ないでしょう。
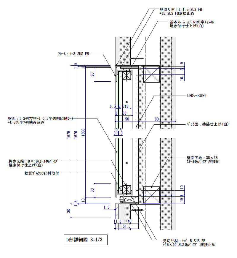
最後に、縦断面図を添付しておきます。

これも、実はかなり難しいと感じるでしょうが、気合いを入れて理解して下さい。注意としてはコルトンを取り付けた扉の上での空きです。
また、ここでは鍵も確認されますね。
施工もとても楽でした。
事前に上下の補強金物を取り付け、その後PBボードを貼り付けてそれなりの納めで終わりって感じです。
作図もここまで描けばほぼ優等生と言えるでしょう。私の第一の弟子が描きました。
応援よろしくお願いします ↓ ↓ ↓
デザインランキング