■サイズ
| ■仕様 |
W1200×D300×H2200 図面参照 | 本体:木下地化粧板仕上げ フレーム:スチールメラ焼き仕上げ その他は、図面参照 |
■備考 ★
|
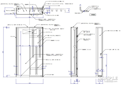
汎用性のある店頭行灯サインの図面事例をご覧いただいております。
汎用性があるといっても、かなり以前のもので今はほとんど見ることは在りません。
主に店頭や、平場で柱前にアパレルのブランドサインなどで使われたように記憶があります。
今での使用は、厳しいかもしれませんが、同形状でフォルム違いのサイン等は、まだまだ多く使われていると感じます。
では、詳細についてお伝えしましょう。
頑張ってます!
↓ ↓ ↓
●スポンサードリンク
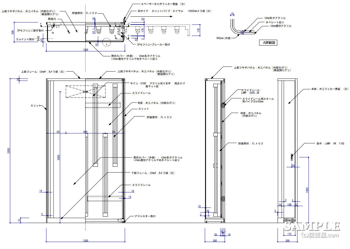
最近の行燈は、ほとんどがLED照明なので、形も大きさも千差万別でデザインする立場からは本当にありがたい代物です。
私の時代は、ほとんどの照明と言えば、FLでした。
棚下照明などは、スリムラインと言ってこれもまた、FLみたいなもので収めに苦労しました。
おまけに必ずメンテナンスのための、点検口も必要なので、サイン関連の図面はあまり好きではありませんでした。
さて、余談はさておいて作図的にはこの程度まで描ければ、まず◎を差し上げます。
尚、私が苦労したメンテナンス方法の拡大図(上記より大きいもの)も添付しておきます。

これが、光源ボックスとなり、メンテの時は右側に引っ張り出す格好になっています。ちょっと重くもにも感じますが、何とか旨くいったようです。
その他の拡大図もついでといっては何ですが、添付しておきます。

各断面指示は、三面図に出ています。

縦断面図の詳細図です。
是非是非参考になさってください!
それでは、次回をお楽しみに管理人のまっさでした。
頑張ってます!
↓ ↓ ↓