
| ■Data |
| ■サイズ | ■仕様 |
≒1100×≒2500×≒300
| サッシ枠:ST曲げ加工焼き付け仕上げ Gスクリーン:t=8化透明ガラス+t=2和紙 +t=8化透明ガラス LED照明取り付け |
■備考
|
今回は、店頭の柱を利用した行灯サインの事例_その1をお届けしましょう。
何とも愛想の無い図面ですが、柱を利用したもので、ここにビジュアルが入ればそれなりに見栄えはあるかと感じます。これについては、あくまでも姿図なのでご勘弁を!
作り自体それほど問題ではありませんが、L型にデザインすることで柱型を隠すアイデアは、素晴らしいと感じます。
仕上げは上記を参照するとして、この盤面に衣装が入ります。この時点では、店舗名も決まっていなかったので、取りあえず外形だけを表してクライアントに提出しました。
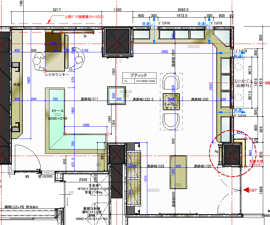
この状態だと理解しがたいので、位置がわかるように平面図を添付しておきます。
頑張ってます!
↓ ↓ ↓
デザインランキング
にほんブログ村
●スポンサードリンク

当時、まだ空き家だったので業態、店舗名は不明でした。取りあえず、デザイナーさんから送られたマンガのような平面ラフプランを、サイド描き直しました。上の平面図がそれです。
今回の事例の行灯サインの位置は、赤でマーキングしたカ所です。前述の図面と照らし合わせてください。
柱型の出っ張りが無ければ、フラットな行燈になったのでしょうが................。
まぁ、旨く柱型を隠しているので、空間が広がりますね。個人的にも、これについては、良いアイデアだと感じます。
建築物には、こうした厄介な柱が多く存在しますが、これとの格闘も経験値を積めばいろいろアイデアが出るもんです。
次回は、もう少し掘り下げたかたちの図面、すなわち詳細図をご紹介しましょう。