
■サイズ
| ■仕様 |
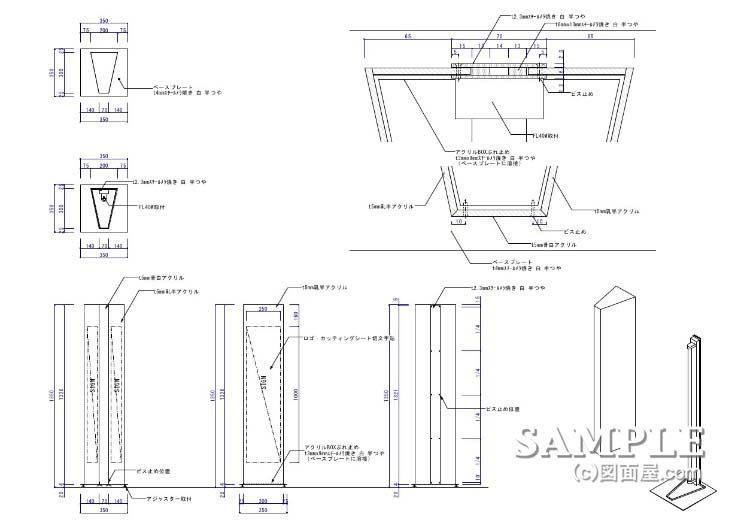
W350×D350×H1350 図面参照 | 支柱:スチールFB溶接組み焼き付け仕上げ ベース:t=4mmスチールプレート焼き付け仕上げ サイン:t=5mm乳半アクリ+骨白アクリ+C/S切り文字貼り |
■備考
|
内照式スタンドサインの姿図と断面図が、今回の作図事例です。設置箇所は様々ですが、特に多く見られるのは、百貨店などのアパレル売り場です。
売場にある多くブランド名を、お客様に分かって頂くために、店舗ファサードの共用通路前に設置されることが多いようです。
サインベースとなるのは、逆台形型に、仮組み立てた乳半アクリと骨白アクリをホットボンドで接着します。
そして、このサインベースを座の付いたH型に溶接した溝に沿わして、上から落とし込む納めになっています。
その他、続きがありますのでご覧ください。
頑張ってます!
↓ ↓ ↓
デザインランキング
にほんブログ村
●スポンサードリンク最後に、ベースプレートにも振れ止め用としてのフラットバーを溶接しています。しかし、アクリを固定するビス穴が、
きわにあるので、もう少しフラットバーの高さを上げた方が良かったかもしれません。
内部の昭明器具を取り替える際に、ビスを強く締めすぎるとアクリが割れてしまう危険性もあるためでもあります。
このことから詳細図でも表現しているフラットバーを溶接した支柱部分も同様に、ビス穴の芯を10mmから1
5mm程度に変える必要があります。
この内照式スタンドサインで使用している鋼材は下記を参照下さい。
⇒
鋼材表【スチールFB】また、スタンドミラーにも言える事ですが、縦に永細いフォルムの什器は安定性にやや不安を感じます。
この内照式スタンドサインもベースプレート以外は、殆どがアクリルで構成しているので、万が一倒れた場合、割れた破片でお客様に怪我を負わす事にもなりかねません。
よって、ベースプレートに重心を下げる為の工夫が必要となります。
最も簡単な方法は、底面におもしとして、厚みのあるスチールプレートを何枚か溶接しておく事です。ただ、重量が増してしまうので移動させる時が手間になるかもしれません。
頑張ってます!
↓ ↓ ↓
デザインランキング
にほんブログ村