
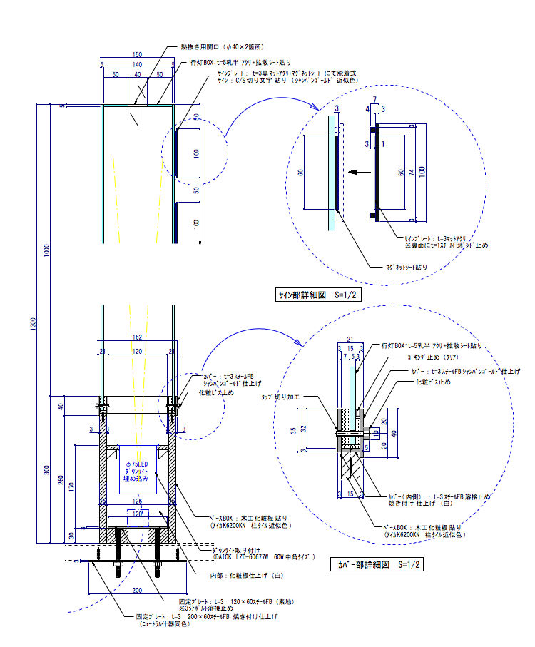
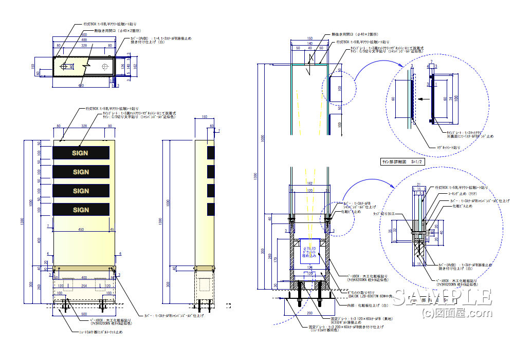
■サイズ
| ■仕様 |
W500×D150×H1300 図面参照 | ベース:木工化粧板仕上げ 行灯:t=5mm乳半アクリ サインプレート:t=3mm黒マットアクリ+マグネットシート サイン:C/S切り文字 |
■備考 180109更新 |
自立式のサインはよく見かけますが、今回の事例はシンプルで見栄えは良く、
このフォルムをしっかり理解すれば、必ずや応用性が広がるでしょう。この作図も自分のものとしてください。
元々は、某スーパーの食品売場(菓子)のアクセントとして企画した行灯サインです。
設置は、床立ち上げの自立式にしています。が、ちょっと低かったようにも感じます。
前述したように、
多くの場所で活躍できるサインですから是非参考にしてください。
次にその
詳細図も添付してますので、
続きをご覧ください。
頑張ってます!↓ ↓ ↓
デザインランキング
にほんブログ村
●スポンサードリンク
従来の行灯サインでは、
アクリボックス内に光源を取り付けるベースを設けることとなりますが、この納めについてはあくまでも
片面の行灯サインには適合できます。
しかし、今回は
両面仕様となるのでアクリボックス内にもスペースがなく、仮に製作してもとても厚みが増し不細工なものとなります。
そこで、
試行錯誤です。
この行灯サインは、前述したように両面式となっていて従来の光源ではちょっと難しいのですね。そこで思いついたのはと下部からの照明です。
結果、
LEDのダウンライトを仕込み上に向かって照射することで解決しました。
仕上がるまではちょっと心配でしたが、照射効果は思った以上に良かったように感じます。
ここで、苦肉の策である
断面詳細図を添付しておきます。

この行灯サインはシンプルなだけでこれといった取り柄のようなものははっきり言ってありませんが、
盤面をアレンジすることでかなり見栄えは変わってきます。この場合、食品売り場でしたので、各メーカーのサイン(4個)が入ってますが、このカ所を替えれば用途は、大変広いと感じます。
また、食品位限らず、その他の売場にも適合できるとかんじます。
例えば、通路でのディスプレーサイドの設置で
アクセント効果のあるアパレルのブランド紹介などでもよいと感じます。
頑張ってます!↓ ↓ ↓
デザインランキング
にほんブログ村