
■サイズ
| ■仕様 |
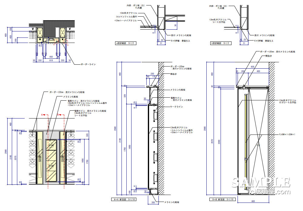
W1118×D600×H2100 図面参照 | 本体:木工化粧板仕上げ 盤面:t=3乳半アクリ+コルトンシート+t=3クリアアクリ
|
■備考
|
この作図事例は行灯サインを使用した壁面フォーカルポイントの事例です。
間延びしがちな壁面に光を使ったこのような装置は、とても効果があります。
特に今回はランファン売場での作図を用意しました。
この形状も売場の躯体が原因でした。(平面図参照)
こんな躯体柱が売場にあるととても困ります。
そこで、なんとかすることも設計者の役目ですが、とても厄介でした。
そ
の苦労話は、続きをご覧ください。
頑張ってます!↓ ↓ ↓
デザインランキング
にほんブログ村
●スポンサードリンク
間延びしがちな壁面には必ずこういったフォーカルポイントを設けることが、私の得意とすることです。
これによりお客様を楽しませ、ダレさせない効果は確かにあります。
しかし、この物件ではすでに壁面が商品だらけで、あえて商品でのフォーカルポイントは必要ありませんでした。
おまけに出っ張りの壁面ですから商品は置けません。
そこで、光柱を考えましたがデザインが、まとまりきれない日が続くなか、こういう形になってしまったのです。
本当は平面上、逆台形のフォルム造りたかった・・・・。
中央には、フォトを入れたカラーコルトン。
両サイドにはランファンメーカーのサインでまとまりました。
造りとしては、中央の行灯にはサークラインを昭明器具として使用しています。
しかし、今ではLED照明が内照式サインの光源となって、サークラインは過去の遺物となり、店舗用としては普及されていません。
LED照明が普及してからは、行灯内部の有効寸法も融通がきき、設計するのもとても楽ちんです。
当時はこの事例を見ればその苦労を感じるでしょう。
最後に部分詳細図を載せておきます。