ショップファサードのコルトンサイン詳細図|図面屋ま〜の "Easy Living" な日々

図面屋ま〜の "Easy Living" な日々

リタイヤした平凡な図面屋です。仕事から解放されて日々のんびり気楽に暮らしてます。そんな奴が好き勝手書いてます!

ショップファサードのコルトンサイン詳細図

colton sign1

海外のスーパーブランドなどで良く使われるショップファサードのコルトンサインです。
ブランドイメージを打ち出すのにはとても効果のあるサインと言えますね。

最近ではLEDの普及により以前より薄型にする事が出来、売場が狭い店舗でも取付可能になるのは嬉しいことです。。

今回の場合はストックルームの壁面を利用して、ファサード左壁面にに大きな面を利用してインパクトのあるイメージサインを演出しました。

ただストックルームの面積を極力確保するために壁厚を若干薄くせざるを得なかったので、その納め方も薄型に対応した手法にしました。

詳細は、続きを読むからご覧ください。

尚、この収め方はコルトンサインの他にも応用する事ができますので、類似した事例も参考にして下さい。

それでは、続きをご覧ください!

頑張ってます!
↓ ↓ ↓

デザインランキング
にほんブログ村 デザインブログへ
にほんブログ村

●スポンサードリンク



colton sign2
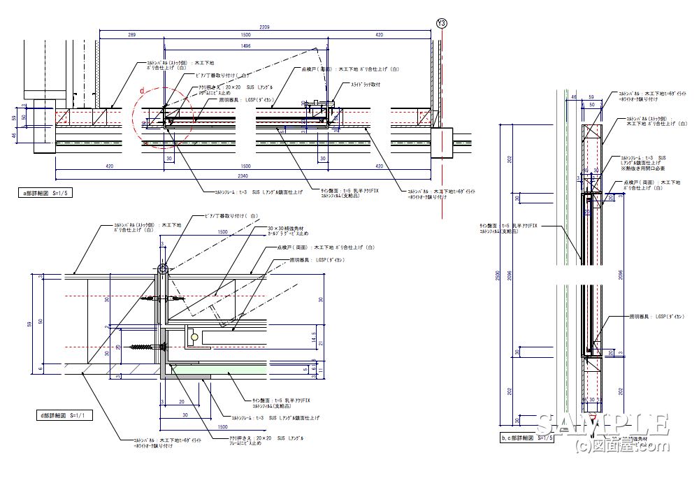
この図面が各部の詳細図となります。

スチールの曲げ加工で納めてますが、この納めがけっこう厄介ですので、この機会に覚えるようにしてください。

盤面はサイズの違う2種類Lアングルで固定するようにしています。

光源はサインメーカーの既製品を利用してメンテナンス用扉に取付ているのですが、1枚扉にしているので開閉する為に大きな有効スペースが必要となります。

この場合は扉を観音開きにする事で解決します。
しかし、照明器具が分断されてしまうので光にむらが出てしまう恐れもあるんです。

なので、扉をケンドン式(上げ落とし式)に替えることも考えられますね。

上記の拡大図も添付しておきますので、是非役立ててください!


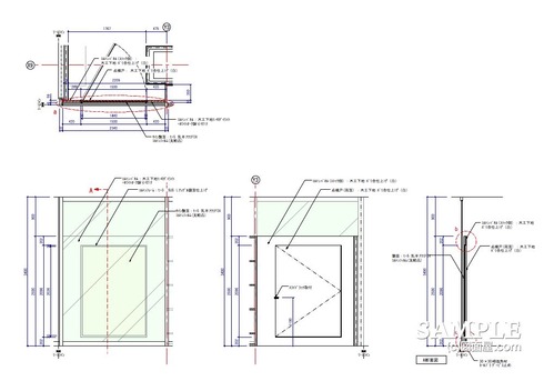
a detail

若干大きく見えるので理解はしやすいと感時ます。
平面詳細図です。

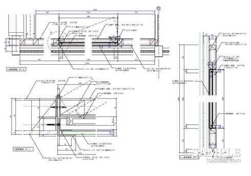
以下は、断面詳細図です。こちらも同様大きくしました。

b,c detail


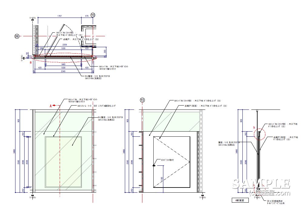
最後のこの納めは、極めつけですのでよく理解してください。
尚、各詳細図の位置関係も御自分で明確にするように努力してください。

d detail

今回は以上とします。
依田和でした!

頑張ってます!
↓ ↓ ↓

デザインランキング
にほんブログ村 デザインブログへ
にほんブログ村
2023/12/08| コメント:0Edit

コメントする

名前
 
  絵文字
 
 
Copyright © 図面屋ま〜の "Easy Living" な日々 All Rights Reserved.
当サイトのテキストや画像等すべての転載転用・商用販売を固く禁じます