
■サイズ
| ■仕様 |
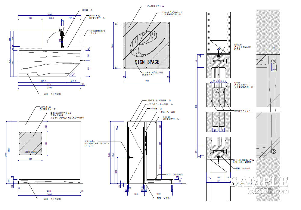
W2400×D1000×H2200 図面参照 | DSPパネル:木工ラッカー塗装仕上げ サイン:t=5mmクリアアクリ+t=20ラインボードシナ突板貼
|
■備考 ★
|
今回はちょっと珍しい図面事例です。といっても単純なサインなんですが・・・・・。
店頭などにこういったディスプレー什器をよく見かけますが、形状はシンプルでその収めが珍しいと感じたので掲載してみました。
サインといえば、電飾サインを思いがちですが、今回の事例は照明器具は一切使わず
その形状で見せるサインです。
ややこしい配線も無く、まさにコスパといってもいいでしょう。
続きにその納め図がありますのでご覧ください!
頑張ってます!↓ ↓ ↓
デザインランキング
にほんブログ村
●スポンサードリンク
さて、その納めを見てみましょう。
ちょっと大きすぎた模様ですが、これぐらい大きいと分かりやすいと感じます。

上記左の図は、サインパネルの断面図、右の図は正面図の拡大版と解釈してください。
つくりはとても簡単で、夏休みの工作などでも出来るぐらいです。(笑) まず、
50mm×60mmの木工の四方枠に、5mmの透明透明アクリル板をケンドン式で固定します。そして、
シナ突板を貼った20mmのスタイロボード(カルプサインに似た素材)を先ほどのアクリル板、両面に挟み込んで接着します。
最後に、
全面に5mmの透明透明アクリル板をローレットで取り付けて終了です!見え方は、中央のスタイロボードのサインだけが浮いている様に見えるはずです。
このサインは、ほかの物件でも趣向を変えてみましたが、どれについても好評を頂きました。私も若かりし頃は柔軟な頭を持っていたのですね!
読者の皆さんも、一度つくってみては如何でしょう。
応援、宜しくお願い致します。 ↓ ↓ ↓
にほんブログ村 
人気ブログランキング