スチール角パイプ組の吊りサインの事例|図面屋ま〜の "Easy Living" な日々

図面屋ま〜の "Easy Living" な日々

リタイヤした平凡な図面屋です。仕事から解放されて日々のんびり気楽に暮らしてます。そんな奴が好き勝手書いてます!

スチール角パイプ組の吊りサインの事例


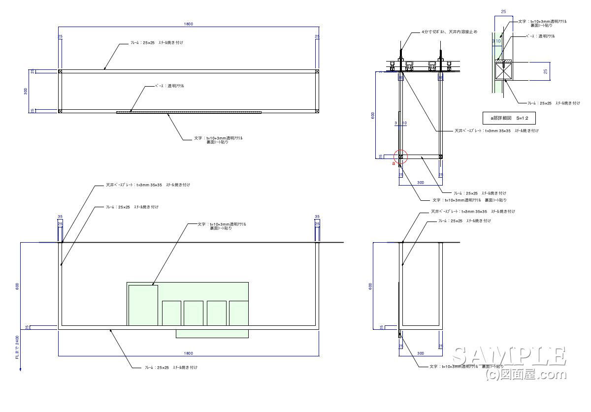
plan
 
■Data
■サイズ■仕様
1800×300×600
 金物部:スチール焼き付け仕上げ
 サイン:透明アクリ+シート貼り 
■備考
吊りパイプは天井面の座にボルトを溶接してC型綱上で固定しています。

今回は、天井吊りサインの一例ですが、簡易でローコストで仕上がるのでスーパーなどでよく見られます。

この作図も、記憶が定かではありませんが、スーパーの入り口及び、カテゴリーサインなどに使ったような気がします。

ワイドが1800mmと記されていますのできっとカテゴリーサインと思われます。

それでは、深掘りをしていきましょう。

続きをご覧ください!

頑張ってます!
↓ ↓ ↓

デザインランキング
にほんブログ村 デザインブログへ
にほんブログ村

●スポンサードリンク

例えば、スーパーの食品などでは、惣菜(デリカテッセン)、ベーカリーなどで使用されることでしょう。

本体のサインは、事例ではトーメイアクリル板+シート貼りになっていますが、通常ではカルプ文字での事例が多く見受けられます。

中にはチャンネル文字なども使用でしている事例もあります。
ただ、チャンエル文字は高価なたデザインする場合はクライアントとの相談が不可欠です。

最近はこのタイプのサインを見ることは少なくなりましたが、まだまだ活躍の場があると考えるます。

ですから、すぐにでも描けるようにしておくのも大切です。

デザインなんて、自分の抽斗(ノウハウ)をいくつ持っているかが勝負です。

私などは、昔デザインライブラリーなるものを考え、何千何万もの写真資料やスケッチ資料をどっさりため込むことで、本来悩まざるを得ないデザインを体系化していました。

ちょっと話は飛んでしまいましたが、このようなサインだけではなくあらゆるサインを知っていて損はしません。

しかもクライアントとの打合せ時においても、即剤にスケッチすることで信用度は倍増するでしょう。


是非ご自分のデザインライブラリーなどを作ってみては如何でしょう。

最後に、覚えておくべき作図を載せて終わりにします。

section

この断面図は、しっかり理解してください。ひとつ、引き出しが増えましたね!

応援、宜しくお願い致します。

頑張ってます!
↓ ↓ ↓

デザインランキング
にほんブログ村 デザインブログへ
にほんブログ村

2024/02/06| コメント:0Edit

コメントする

名前
 
  絵文字
 
 
Copyright © 図面屋ま〜の "Easy Living" な日々 All Rights Reserved.
当サイトのテキストや画像等すべての転載転用・商用販売を固く禁じます