リタイヤした平凡な図面屋です。仕事から解放されて日々のんびり気楽に暮らしてます。そんな奴が好き勝手書いてます!

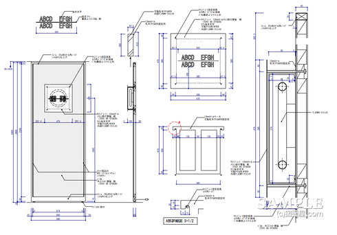
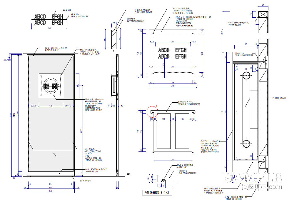
| ■サイズ | ■仕様 | |
| W940×D142×H2420 図面参照 | パネル:木下地ラッカー塗装仕上げ(紺) フレーム:スチール角パイプニッケルサテン仕上げ サイン部:t=2mmスチールプレート焼き付け仕上げ | |
| ■備考 BAY HILL CLASSIC 高知大丸店 2000.01.07 | ||
この作図事例は柱や壁面に、テーマカラーを強調してショッップを意識してもらうためのサインパネルであってひとつの手法と考えます。
当時、百貨店では小規模で小さい面積のショップでは、売り場に配置されている他のブランドとの差別化と視認性を上げるための様々な工夫がなされていました。
陳列スペースも限られたスペースで売り場を確保することも重要ですが、ショップを視認してもうためのサインは最も効できる手法と考えます。
そこで、この事例のようなサインパネルが必要となってくるのです。
続きをご覧ください!
頑張ってます!
↓ ↓ ↓![]()
デザインランキング![]()
にほんブログ村
店頭に柱があれば、最も最適なサインの打ち出し場所となり、アイキャッチ効果も期待できます。
また、奥行きのない売り場では、壁面の1部を使ったディスプレイのバックパネルとして利用し、商品と共に視認性を高めることができます。
このサインの特徴は、盤面と光源の行灯を別々に固定しているところにあります。
どちらも木パネルから持ち出したパイプを利用するのですが、行灯ボックスは単に引っ掛けるだけの納めです。
これは内部の照明をメンテナンスするためにあえて固定していません。
作図上で注意すべき点としては、A詳細図でもわかるようにパイプとの掛かり具合です。
あまり浅い掛かりだとパイプは簡単にはずれてしまうので、掛かりシロは多く取っておくことが大切です。
ま〜
図面屋ま〜では、若き同業者の方々のお役に立てるよう、今まで描き続けてきた図面資料やデザイン資料などをお伝えしております。 ただ、掲載している作図資料はあくまで資料であり、全ての店舗や施工に当てはまるものではありません。ですから、参考程度の資料とお考えください。
Powered by ライブドアブログ