
| ■サイズ | ■仕様 |
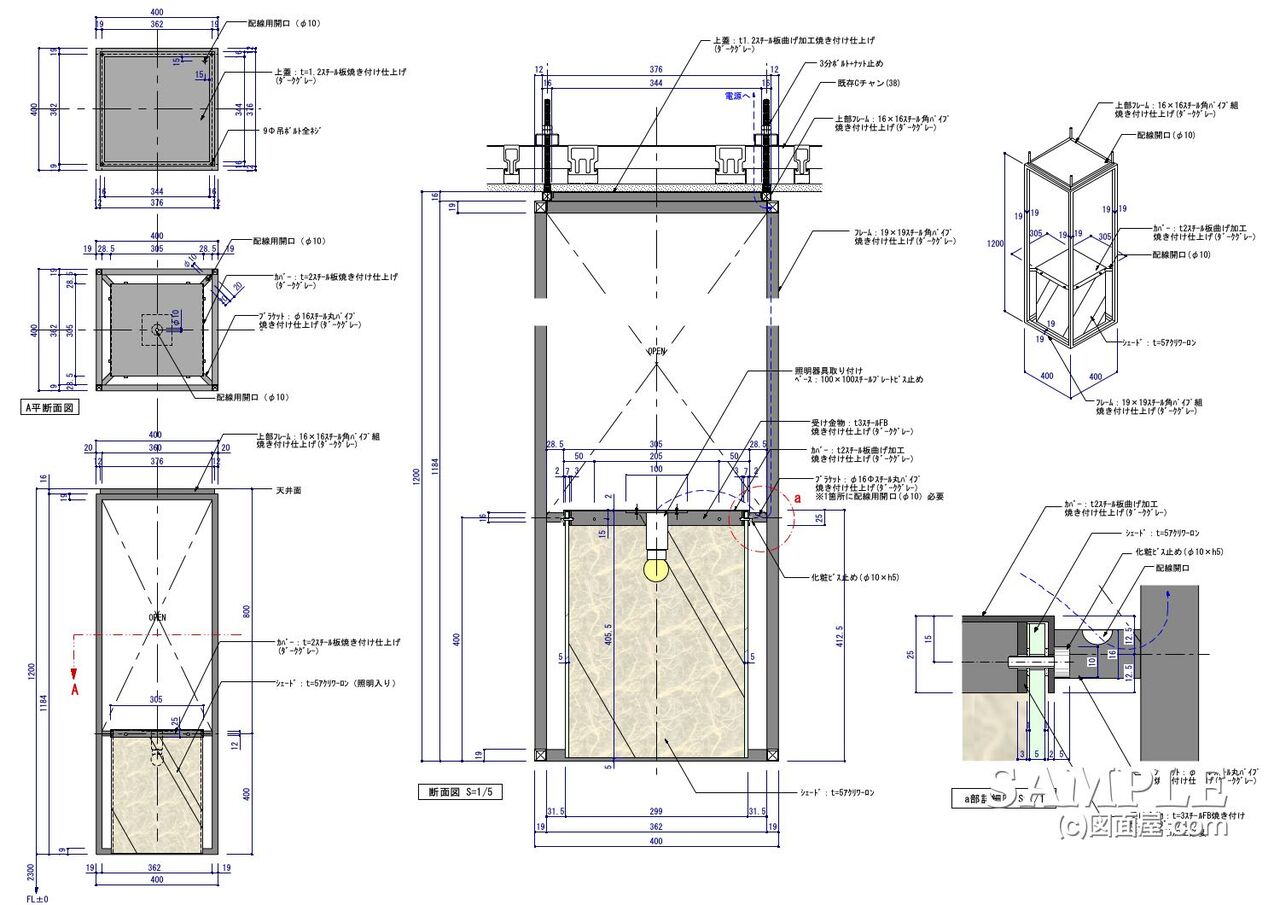
W400×D440×H1200
| 本体:STメラ焼き塗装仕上げ+ワーロン |
■備考
|
今回は、15年前にうちのボスの手伝いで描いた ”吊り式の行灯サイン” です。
たしか、百貨店の食品売場だったと記憶します。
かなり、緊張して描いたのを覚えています。
和食の飲食街での共通サインなどでもよく目にする吊り行灯サインです。
フォルムや仕様を見る限り、ごく一般的なので活用価値はあります。
是非,覚えて欲しい図面です。
イメージは以下の写真にある「和」テイストです。

※写真元
この写真とイメージはあってますが、これを捩った訳ではありません。
あくまでイメージと捉えてください。
それでは、続きをご覧ください。頑張ってます!↓ ↓ ↓
デザインランキング
にほんブログ村
●スポンサードリンク
ここで、縦断面詳細図をごらん頂きましょう。
かなりしっかり描いたのでボスには及第点頂きました。
そして、そのまま製作につなげることができました。

この事例は、
この19mm×19mmスチール角パイプとt=5mmの
ワーロンでの組み合わせで、「和」を演出しました。
設計上の苦労は、t=5mmの
ワーロンの取り付け方でした。
如何に納めるか!についてはちょっと悩みました。
その他、配線などの処理にも苦労しましたね。(やれやれ)

上記の縦断面詳細図でマーキングした箇所ですが、
ワーロンの取り付け方を描いています。
ご理解できますか? 良かった!
今日は以上です。ありがとうございました!
頑張ってます!↓ ↓ ↓
デザインランキング
にほんブログ村