
■サイズ
| ■仕様 |
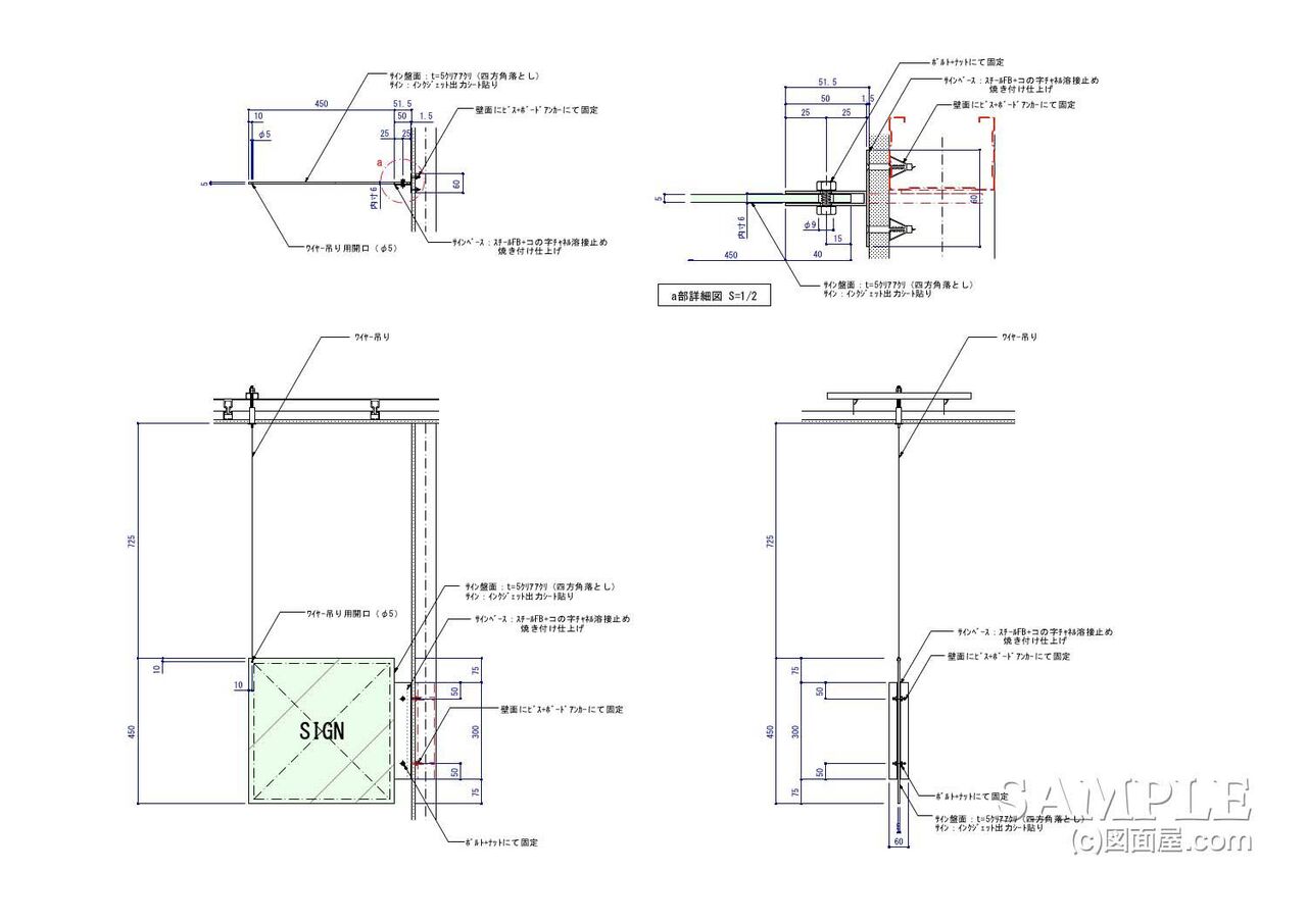
W3000×D288×H1069 図面参照 | フレーム:19×19スチール角パイプ焼き付け仕上げ 盤面:t=5乳半アクリ サイン:カッティングシート切り文字 |
■備考
|
この作図事例は、一般てきな突き出しサインの姿図と詳細図です。
ショッピングモールや地下街などで、通路を歩く人に対して訴求するサインです。
サイン盤面にはアクリルを使用するのが一般的ですが、スチールプレートや内照式にしているタイプがあり、様々な仕様のサインが設置されています。
一度買い物がてらに注意して見て下さい。いろいろな形状のサインがありますから。
さて、この事例ではコストがなかったのか、共通仕様だったのかは不明ですが、何とも簡易な納めになっています。
それでは、その納めとは>?
続きをご覧ください!頑張ってます!↓ ↓ ↓
デザインランキング
にほんブログ村
●スポンサードリンク
テナントが代わる度にサインも取り替える事になるのですから、固定物のベースとなる部分はやはり耐久性と強度が必要です。
そこで、図面内に別の収め方を
赤い1点鎖線で描いています。
この納め方は、固定棚のインローや持ち出しサインなどでよく使用している工法です。

まず、壁面に取り付けているベースですが、ボードアンカーとビスで固定しています。
これでは強度的に問題がありますね。
5mm厚のアクリでも45cm角ともなるとちょっとした重量になります。
その為にアクリルの上部に天井から吊したワイヤーで補強を取っていますが、あまり美観的にも良くはないですね。
サインのベースと持ち出しパイプ、そして壁下地材に取り付ける座を全て溶接しておき、ボードを貼る前に固定しておきます。
この方法の場合、上部にワイヤー補強は必要なくなるでしょう。
見た目もスッキリして、尚かつ強度も向上します。
以上でした。お付き合いありがとうございました。
頑張ってます!↓ ↓ ↓
デザインランキング
にほんブログ村