段違いディスプレーステージの外観図|図面屋ま〜の "Easy Living" な日々

図面屋ま〜の "Easy Living" な日々

リタイヤした平凡な図面屋です。仕事から解放されて日々のんびり気楽に暮らしてます。そんな奴が好き勝手書いてます!

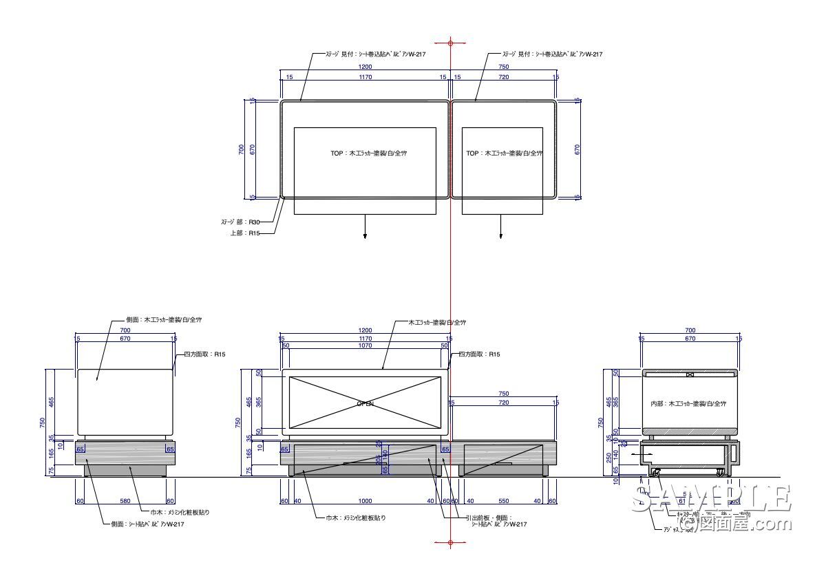
段違いディスプレーステージの外観図


plan


■サイズ
■仕様

W1200×D700×H750
その他図面参照 


本体:木下地ラッカー塗装仕上げ
※四方面取り仕上げ
■備考


この什器は店頭に設置されたディスプレーステージです。
段差を付けて動きのある演出が出来るので、ディスプレーに変化をもたらせます。

上部のロの字型ディスプレー台は置き式となっているので、シーンによって取り外す事も出来ます。

その結果、様々なディスプレーに対応し、分割する事で単体でも使える非常に利便性の高い什器になっています。

ただステージ部下部に設けた引き出しは必要ないように感じます。

店頭に設置する什器は基本的に商品を見せる事に特化しています。
ですから、ストック機能を取り付ける必要はないと考えます。

それでは、続きをご覧ください!

頑張ってます!
↓ ↓ ↓

デザインランキング
にほんブログ村 デザインブログへ
にほんブログ村

●スポンサードリンク

しかし、売場内に収納スペースが無く、どうしてもストックを取り付けるのであれば、店内側に引き出す向きにして設置する事が望ましいですね。

さてこの2台のステージはそれぞれサイズを変えている事がお分かりになると思います。

什器の大きさを変える事でディスプレーのボリュームも変わって来ます。
このアンバランス差によって動きのある演出が出来るのです。

その結果、訴求力の向上にも繋がるのです。

単にトルソーやマネキンだけでも着装感あるディスプレーは可能です。
しかし、VMDとしては物足りない演出です。

例えば、ロの字のディスプレー台に色や柄の違う商品を陳列し、トルソーなどと組み合わせておきます。そして、横のステージにはマネキンを1体設置すると高低差が出来、動きのあるディスプレーになるのではないでしょうか。

また、ロの字の内部に靴やバッグ等のアイテムを置く事も考えられますね。

このように左右をアシンメトリーにした構成はVMDの基本の一つとしてありますが、とにかくバランスが重要ですので注意して下さい。

頑張ってます!
↓ ↓ ↓

デザインランキング
にほんブログ村 デザインブログへ
にほんブログ村
2023/10/19| コメント:0Edit

コメントする

名前
 
  絵文字
 
 
Copyright © 図面屋ま〜の "Easy Living" な日々 All Rights Reserved.
当サイトのテキストや画像等すべての転載転用・商用販売を固く禁じます