リタイヤした平凡な図面屋です。仕事から解放されて日々のんびり気楽に暮らしてます。そんな奴が好き勝手書いてます!

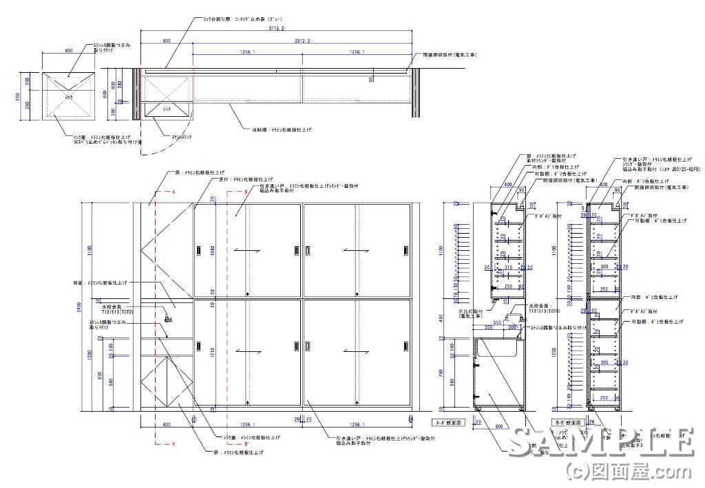
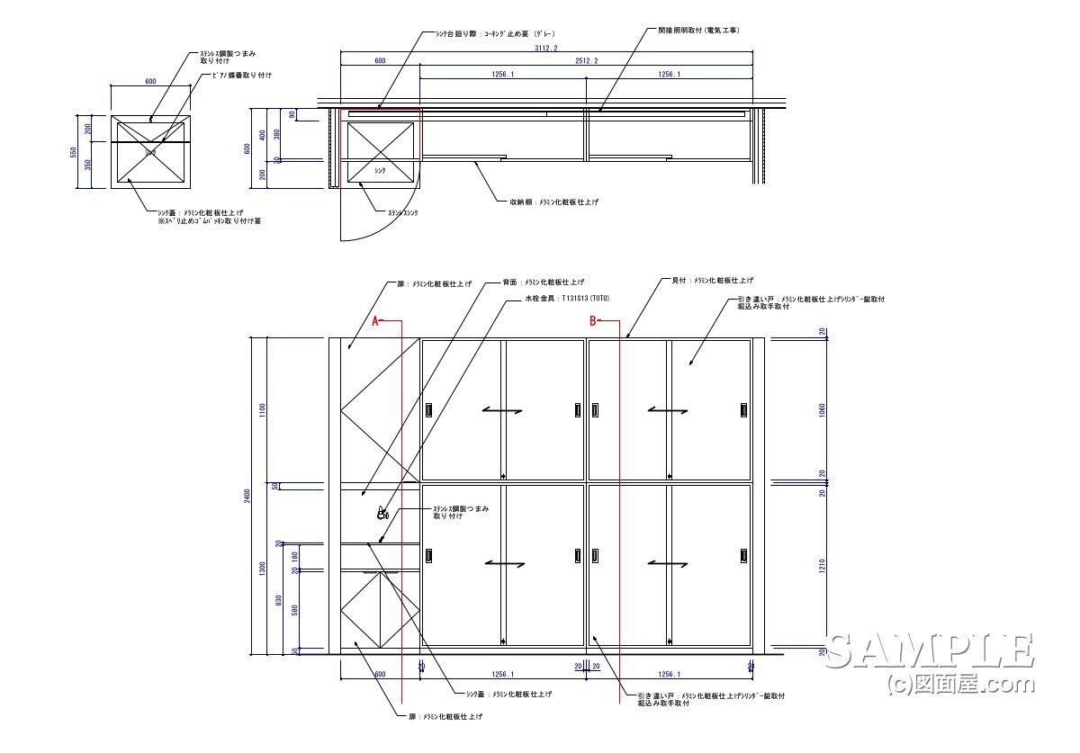
| ■サイズ | ■仕様 | |
| W3112.2×D600×H2400 | 本体:化粧板仕上げ | |
| ■備考 作図日:2011.01 業態:大型メガネショップ 【STO_000】は「storage」収納の略語 | ||
【作図解説】
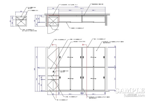
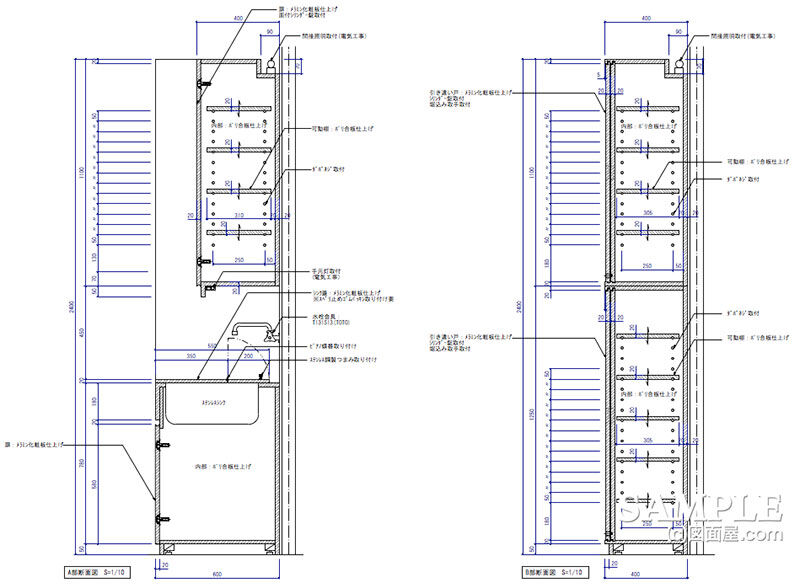
今回の作図事例は、眼鏡ショップのレジバックに設置された大容量ストック什器です。
低価格で機能的な眼鏡ショップが一気に普及した時期で、大阪の百貨店への出店に合わせて実施設計を担当した案件でした。
規模の大きい眼鏡専門店は初めてでしたが、什器図面だけでも実務的に学ぶ点が多かった物件です。
ストックの容量は売場規模から考えて妥当で、眼鏡という小さな商品の割に来客が多いジャンルだけに、在庫量を読み誤らないようこのサイズになっています。
また、レジバック側には手洗い用かクリーニング用かは記憶が曖昧ですが、シンクも組み込まれています。
扉はすべて引き違いにしており、レジとストックの間の狭い通路を最大限に有効活用するための仕様です。什器本体は上下に分割して搬入し、現場でボルト+ナット固定して一体化させる構造になっています。
それでは、続きを!
応援よろしくお願いします
↓ ↓ ↓![]()
デザインランキング
【作図ポイント】
引き違い戸は使用頻度が高いため、枠との接点が摩耗しやすいのが難点です。
図面では詳細を描いていませんが、下部には戸車+レールの構成を採用して、摩耗を抑えながらスムーズに開閉できるようにしておくのが望ましいでしょう。
また、下段扉の鍵位置は、スタッフが大きく腰を曲げないで済むよう、少し上寄りの位置に設定しておく方が実務的です。
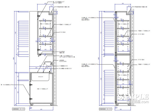
以下、それぞれの断面図参考にしてください。
【私感として】
実際の現場で気になったのは、船底取っ手の高さがやや高めだった点で、女性スタッフには手が届きにくくなる可能性がありました。
作業者の身長差をもっと考慮すべきだったという反省があります。
一方で、通路を確保しながら大容量ストックをまとめられた点は、眼鏡ショップのスピード感ある接客に対応できる什器としては役割を果たしていたと思います。
金物の摩耗対策や鍵位置、操作高さなど、細かい部分を丁寧に詰めることで、レジバック什器は使い勝手が大きく変わります。この事例はその良い教訓にもなりました。
応援よろしくお願いします
↓ ↓ ↓![]()
デザインランキング![]()