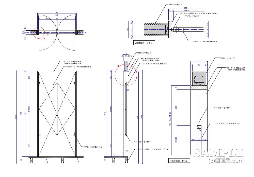
■サイズ
| ■仕様 |
W850×D30×H1200 その他図面参照
| 枠:木ラッカー塗装仕上げ スウィングドア:メラミン化粧板仕上げ |
■備考
|
公共施設から店舗に至るまで、様々な場所に設置されている建具のひとつにスイングドアがあります。
今回は、このスイングドアの作図事例をご紹介します。
具体的にスイングドア使われる場所としては!
1.飲食店では、厨房からホールへの出入り口
2.コンビニエンスストア内のレジ横にある小さなバッタリ戸
3.トイレブースの建具なども一部このスイングドアを使った事例も見られます。
いずれにせよ、あらゆるシーンで活躍する非常に便利でシンプルな建具だと言えます。
今回の作図事例は、人の視線を遮るためにサイズも大きめで、設置高の通常よりやや高くしています。
おそらくゲームコーナーのトイレ出入り口だったと記憶してます。
それでは、もう少し深掘りしましょう。
続きをご覧ください!
頑張ってます!↓ ↓ ↓
デザインランキング
にほんブログ村
●スポンサードリンク
開口枠は、3方仕様で、枠外2125mmと一般的な建具枠と同等のサイズにしています。
一般的な建具と唯一違う点は、戸当たりと取手が不要でどちら側からでも開閉することができます。
この自由な開閉を可能にしているのが、吊り元に取り付けたヒンジです。
代表的なものとして、グラビティヒンジやオートヒンジなどがあります。

グラビティヒンジ
どちらのヒンジも回転する軸が中心にあるところが、共通しています。それぞれ設置する場所で使い分ける事ができます。
簡単にいうと、コンビニストアのレジ横などにある小さくて軽量なドアには、Pヒンジタイプのグラビティヒンジが適しています。
逆に、食品スーパーや飲食店などの後方への出入り口に、設置する比較的大きなスイングドアには、普通蝶番タイプのオートヒンジが、適しているでしょう。(以下参照)
オートヒンジスイングドアは、開閉頻度が非常に高い場所での設置が多いため、一般的な蝶番よりも劣化量が、多いのです。
主に、扉に取り付けているビス部分が緩くなるなり、扉が傾くケースも少なくありません。
ですから、スムースに開閉出来るよう、二つの扉の間には10mmのクリアランス(隙間)を取っています。
また、場合によっては、戸先を丸く加工する事もあります。
いずれにせよ、このスイングドアは、とても便利なものですが、劣化もある程度覚悟して、寿命予測も考えておいてください。
以上です!
頑張ってます!↓ ↓ ↓
デザインランキング
にほんブログ村