リタイヤした平凡な図面屋です。仕事から解放されて日々のんびり気楽に暮らしてます。そんな奴が好き勝手書いてます!

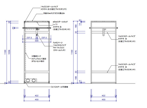
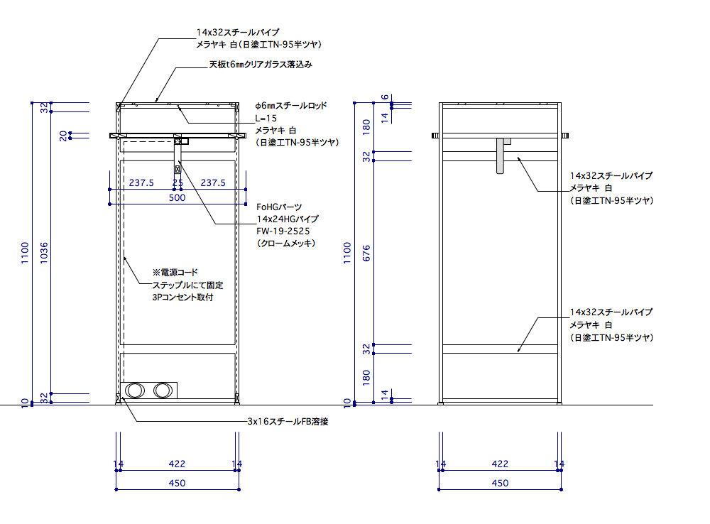
| ■サイズ | ■仕様 | |
| W1200×D500×H1100 図面参照 | 本体:14*32ST角パイプメラミン焼き付け仕上げ 棚板:化粧板仕上げ+棚下照明 | |
| ■備考 marie claire(1999.04.15) | ||
【作図解説】
この図面は、サービスカウンター背面に設置される、スチールフレーム製のハンガー棚一体型什器の事例です。
設計当時は、ブランド独自の什器開発が活発で、百貨店直営売場との差別化を図るため、さまざまな陳列スタイルが試みられていました。
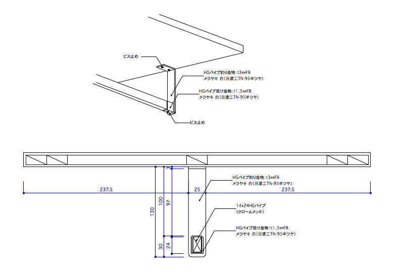
ハンガー機能一つ取っても、単なるスリット+ブラケット構成ではなく、棚と一体化させるなどの工夫が随所に見られます。
今では一般化した手法もありますが、こうした発想や構造設計は、現在でも十分に参考になる内容です。ちなみにスリット角パイプを使用しているので、システム什器(SYS)となります。
【作図ポイント】
・フレーム構造には、比較的細めの角パイプを採用し、軽量かつシャープな印象を演出。
・細い鋼材のため揺れに弱いという弱点は、両側に補強材を溶接することで解消。外観を崩さず強度を確保している。
・この軽量構成により、売場スタッフが自由にレイアウト変更できるよう配慮されている。
・一方で、百貨店で義務付けられている3Pコンセントの露出が課題となり、シャープな印象を損なう要因にもなっている。
・棚とハンガーを一体化することで、陳列の手間は省けるが、パターンが単一化するリスクもある。
・そのため、棚単体・ハンガー単体の予備パーツを別途用意する必要があり、保管スペースの確保やコスト面への影響も避けられない。
応援、宜しくお願いします!
↓ ↓ ↓![]()
デザインランキング![]()
にほんブログ村

