リタイヤした平凡な図面屋です。仕事から解放されて日々のんびり気楽に暮らしてます。そんな奴が好き勝手書いてます!

| ■サイズ | ■仕様 | |
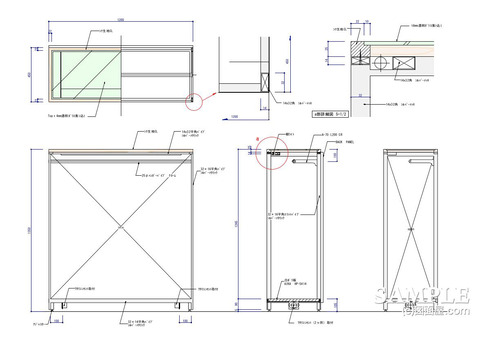
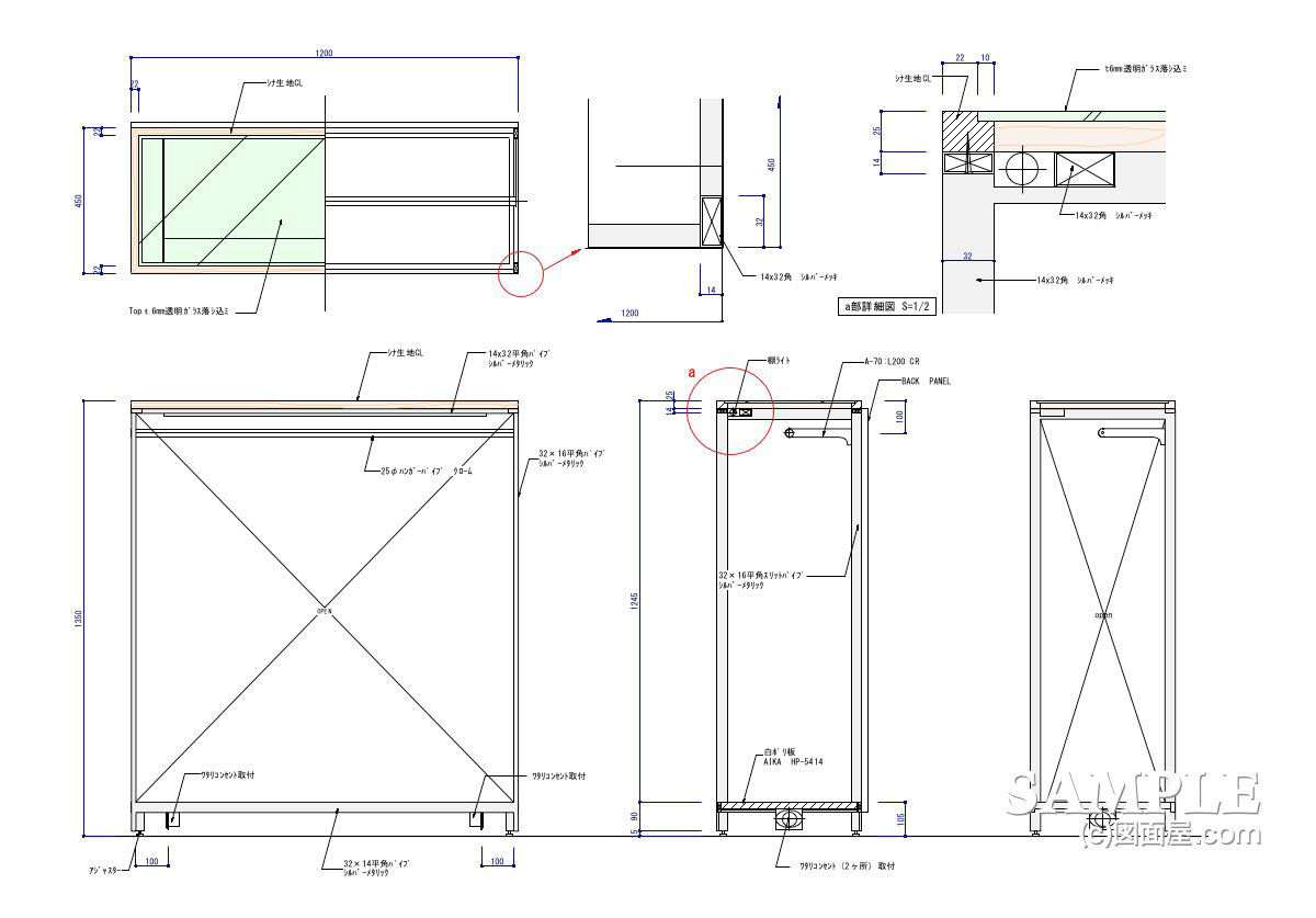
| W1200×D450×H1350 図面参照 | 天板:シナ生地CL仕上げ+t=6mm透明ガラス 本体:スチール角パイプ焼き付け仕上げ | |
| ■備考 作図日:不明 業態:アパレル全般 | ||
【作図解説】
この作図事例は、システム什器の中でも最も採用例の多いフレームタイプの什器のひとつです。
一般的には什器の両側面からシステムパーツを受ける構成が多いのですが、本事例では背面側でシステム受けを行い、背板を組み合わせるタイプとなっています。
全体構成はスチールフレームを基本としたシンプルな箱型で、姿図・断面図・各部詳細図が一通り揃っており、製作・施工の流れを追いやすい図面構成です。
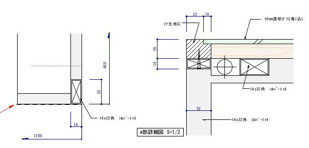
フレームには14mm×32mmや32mm×16mmの角パイプを使い分け、強度と見付のバランスを意識しています。
天板や背板まわりも断面で丁寧に表現されており、仕上がり時の納まりがイメージしやすい内容になっています。
それでは続きをご覧ください!
応援よろしくお願いします
↓ ↓ ↓![]()
デザインランキング
【作図ポイント】
この什器の作図で重要なのは、フレームと面材の取り合いを曖昧にしないことです。
特に天板部分は、フレームに対する納まりや小口の見え方まで考慮されており、量産什器でもチープな印象になりにくい構成です。
また、本事例のように背面側でシステム受けを行う場合は、背板の固定位置や金物の逃げ寸法を明確にしておく必要があります。
キャスターの取付位置やクリアランスも図面上で読み取れるため、什器移動時の干渉やガタつきといったトラブルを未然に防ぎやすい作図といえるでしょう。
以下作図ポイントとして覚えるべき詳細図です。

【私感として】
フレームタイプのシステム什器は数多く存在しますが、この図面は「汎用什器だからこそ基本をきちんと描く」姿勢が感じられる事例です。
売り場構成の自由度が高く、パーツの組み替えにも対応しやすい反面、図面が簡略化されると現場判断に頼る部分が増えてしまいます。
本事例は必要な情報を過不足なく整理しており、製作側・施工側のどちらにとっても安心感のある内容です。
システム什器の基本形として、実務でも参考にしやすい、堅実な作図事例だと思います。
応援よろしくお願いします
↓ ↓ ↓![]()
デザインランキング