リタイヤした平凡な図面屋です。仕事から解放されて日々のんびり気楽に暮らしてます。そんな奴が好き勝手書いてます!

| ■サイズ | ■仕様 | |
| W1800×D750×H800 図面参照 | フレーム:スチール角パイプ黒皮風仕上げ 天板・腰:構造合板染色CL仕上げ | |
| ■備考 作図日:2009.03.09 業態:アパレル全般 | ||
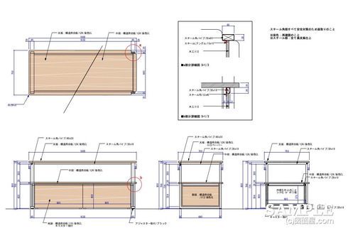
【作図解説】
この作図事例は、2段テーブル什器の姿図と断面図です。
テーブルトップに半身トルソーを複数点並べるディスプレーは定番となっており、売場の主役として使われることの多い什器です。
本来このサイズであれば、天板厚は40mm以上とるケースが一般的ですが、本事例では強度の高い構造用合板を採用することで、24mm厚に抑えています。
その結果、十分な強度を確保しつつ、全体を重たく見せない構成になっています。
それでは続きをご覧ください!
応援よろしくお願いします
↓ ↓ ↓![]()
デザインランキング
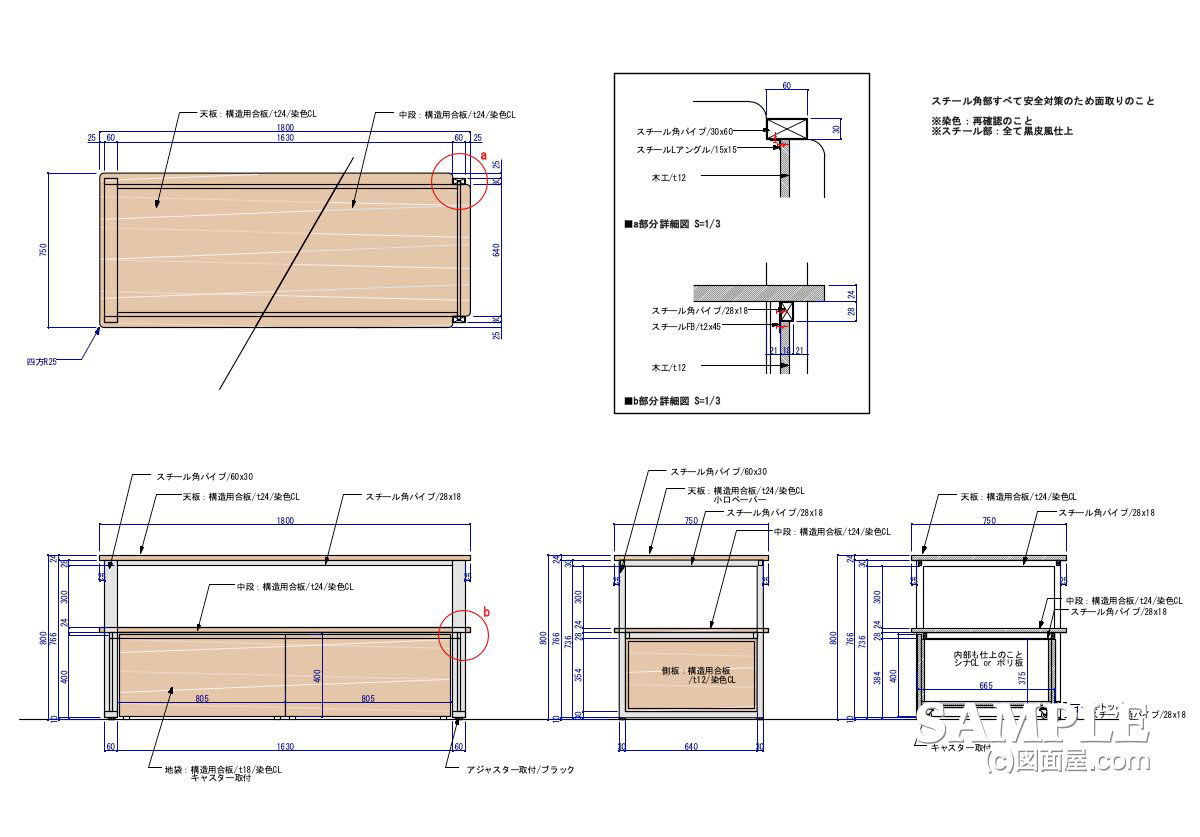
【作図ポイント】
上段は30×60のスチール角パイプを使い、ディスプレーの主役として存在感を持たせています。
一方、下段は細い部材でまとめることで、2段構成でも圧迫感が出ないよう寸法バランスが整理されています。
木部とスチールの取り合い、固定方法が詳細図で明確に描かれており、製作時の解釈違いが起きにくい点も実務的です。

【私感として】
2段テーブル什器は一見シンプルですが、寸法や部材選びを誤ると途端に野暮ったく見えてしまいます。
この図面は、材料特性を理解したうえで天板厚を割り切り、軽快さと実用性をうまく両立させた事例だと感じます。
構造用合板の木目は決して綺麗とは言えませんが、その点も含めて「どう見せるか」を設計側が判断すべき什器でしょう。
ディスプレー什器の基本構成を確認するうえで、実務的に参考になる一枚だと思います。
それでは続きをご覧ください!
応援よろしくお願いします
↓ ↓ ↓![]()
デザインランキング
ま〜
図面屋ま〜では、若き同業者の方々のお役に立てるよう、今まで描き続けてきた図面資料やデザイン資料などをお伝えしております。 ただ、掲載している作図資料はあくまで資料であり、全ての店舗や施工に当てはまるものではありません。ですから、参考程度の資料とお考えください。
Powered by ライブドアブログ