■サイズ
| ■仕様 |
W1500×D900×H850 図面参照 | 棚見付け:20×30mm真鍮古美色角パイプ 棚板:木工ウレタン塗装仕上げ 本体骨組み:70×27スチール角パイプ組み 脚:30×30真鍮古美色角パイプ |
■備考
|
棚什器といっても様々なタイプがあります。
今回は、ラウンド型の2段棚棚什器を紹介します。
これら基本形を、描くことは、図面屋を目指す第一歩だと感じます。
シンプルな什器なので、初心者の方も努力すれば描けるようになります。
それでは、進めます。
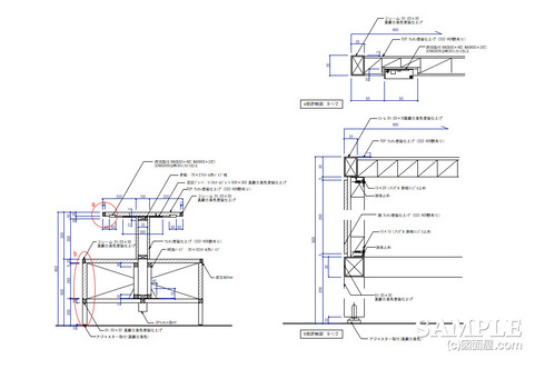
本体は、2種類でスチール角パイプで構成されてます。
図面上では、赤い破線で表現されているところが、骨組みのラインとなっています。
このように骨組みラインを描いておくことで、どの箇所に角パイプが通っているかが、すぐに分かります。
ただ、今回は初心者対象に描きました。
普段は黒で描きます。
しかし、作図が複雑な場合は、こういった表現をすることが多々あります。
表現の方法は自由です。
特にルールはありませんが、出来るだけ色は使わない方が良いでしょう。
それでは、前置きが長くなったので次に進めます。
続きをご覧ください!
頑張ってます!
↓ ↓ ↓

デザインランキング

にほんブログ村
●スポンサードリンク
納めを説明しましょう。
それでは、作図を説明します。
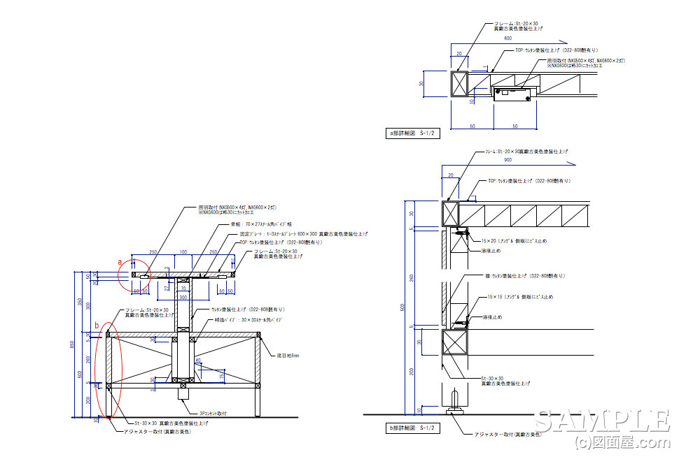
まず、下の断面図を読み取りください!(15分)

断面図を見れば、先ほど説明したスチール角パイプが確認されます。
そのスチールに囲まれた中に、棚板が入る考え方になってます。
ただ、トップの天板のみが、別の納めになってます。
固定用スチールプレートは3mm厚+天板にビス止めとします。
但し、意匠となる面は確保されたいます。
右の断面詳細図を見れば、理解できると感じます。
これを参考にすれば、それほど時間をかけずに描くことが出来ます。
スチールパイプ組みにも難点が!
什器自体の重量が増えてしまうことです。
次に、木部分と骨組みを固定する際にどうしてもどこかでビス頭が見えてしまうこと。
打開策としては、シート貼りなど仕上げすることをおすすめます。
頑張ってます!↓ ↓ ↓
デザインランキング
にほんブログ村