リタイヤした平凡な図面屋です。仕事から解放されて日々のんびり気楽に暮らしてます。そんな奴が好き勝手書いてます!
| ■サイズ | ■仕様 | |
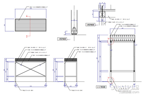
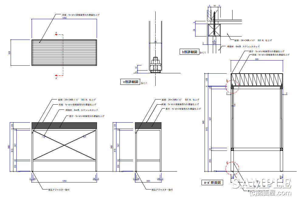
| W1250×D500×H940 図面参照 | TOP:ウォールナット突板染色ウレタン塗装仕上げ 脚フレーム:24×24角パイプ SUS HL 仕上げ | |
| ■備考 ★ | ||
当時、ホテルの環境設計において、ユーティリティ什器群の作図を手掛けた経験があります。 その中にはレセプション用カウンターや間接照明付きの装飾パネルなどが含まれていました。
また、エントランスやエレベーターホールなどに生花や絵画を飾るためのテーブル什器を製作しました。 今回の事例は、その際に制作したハイカウンターテーブル什器ですが、その汎用性から忘れずに覚えています。
比較的高い位置に設置された天板ですが、見た目にも優れた仕上がりとなりました。 トップ部分にはランバーコア下地の突き板貼り仕上げが施されています。
腰部には24×24スチール角パイプを組み、補強のためにそれぞれの角パイプにステンレスロッドφ6mmを溶接処理しました。 それでは、今回の作図事例で覚えておいて欲しい詳細図などがあります。 続きをご覧下さい。
頑張ってます!ま〜
図面屋ま〜では、若き同業者の方々のお役に立てるよう、今まで描き続けてきた図面資料やデザイン資料などをお伝えしております。 ただ、掲載している作図資料はあくまで資料であり、全ての店舗や施工に当てはまるものではありません。ですから、参考程度の資料とお考えください。
Powered by ライブドアブログ


