
今回は、普段よく目にする2段タイプのテーブル中です。
什器高にもよりますが、様々店舗に対応できる万能型の什器であると確信します。
箱物で構成するのも良し、スチールパイプ組の脚に天板を付けるも良し!
まさに店舗には必須什器です。
しかし、今回の事例が汎用性があり、使い勝手も良いので是非真似ってください。
作図は、初心者の方も容易く描けますので、自分のモノとしてください。
ただ、押さえておかない箇所が若干あります。
それでは、納めをお見せします。
続きをご覧ください!頑張ってます!↓ ↓ ↓
デザインランキング
にほんブログ村
●スポンサードリンク

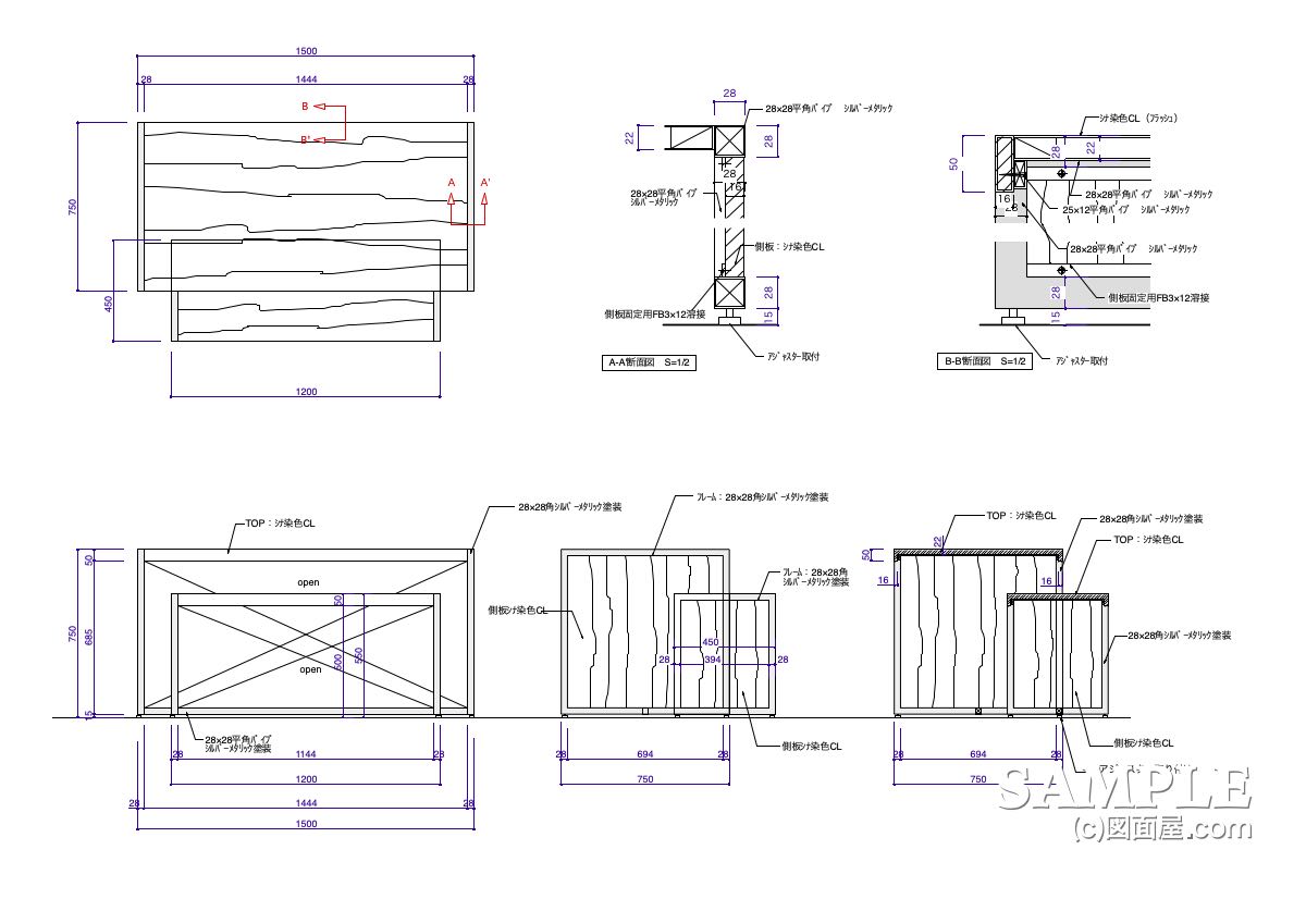
今回の什器で大切な納めは上記に箇所です。
断面指示は、平面図に指示されていますので、参照してください。
昔の図面なので、若干の物足り差はありますがしっかり描けています。
安心してください!
注意点については特にありませんが、もう少し丁寧に描けるはずです。
では、次回をお楽しみに!
続きをご覧ください!頑張ってます!↓ ↓ ↓
デザインランキング
にほんブログ村