リタイヤした平凡な図面屋です。仕事から解放されて日々のんびり気楽に暮らしてます。そんな奴が好き勝手書いてます!

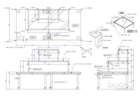
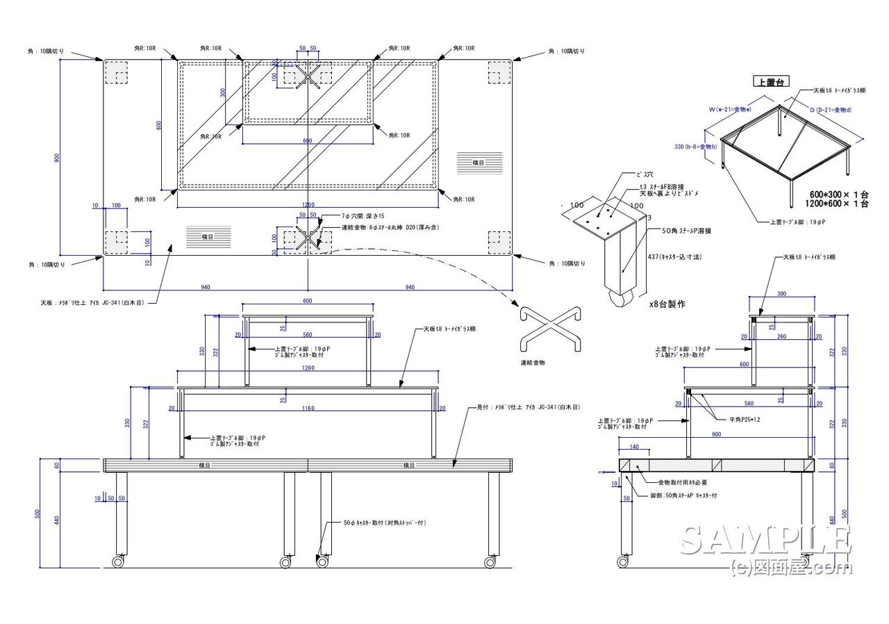
| ■サイズ | ■仕様 | |
| W1880×D900×H1160 | 本体:化粧板仕上げ 脚:スチール角パイプ(クローム) | |
| ■備考 | ||
このオープンテーブル什器は、店舗の顔ともいえるフロント部分に置くタイプの什器。いわば「見せて、売る」を体現したVMD重視のアイテムです。
主に服飾系の商品を陳列することを想定していて、来店したお客さんの目にまず飛び込むような設計になっています。
デザインはとにかく“シンプルでスッキリ”がテーマ。
余計な装飾はそぎ落とし、商品自体が際立つように構成されています。下段のテーブルは、サイズが大きくなることと、搬入や設置の作業性を考慮して2分割にしています。
運ぶ人のこともちゃんと考えてるんですね。
そしてその接合部には、しっかり感のある卍型の固定金物を使用。見えない部分でも構造的な安定感をきちんと確保しています。
全体としては、見た目の軽やかさと実用性を両立した、なかなか気の利いた什器に仕上がったと思います。
応援、宜しくお願いします!
↓ ↓ ↓![]()
デザインランキング![]()
にほんブログ村
ま〜
図面屋ま〜では、若き同業者の方々のお役に立てるよう、今まで描き続けてきた図面資料やデザイン資料などをお伝えしております。 ただ、掲載している作図資料はあくまで資料であり、全ての店舗や施工に当てはまるものではありません。ですから、参考程度の資料とお考えください。
Powered by ライブドアブログ