
■サイズ
| ■仕様 |
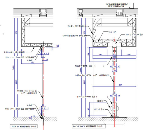
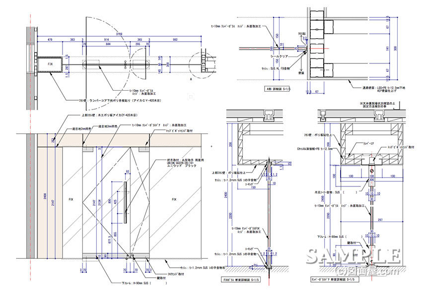
W3139×D300×H2400 その他詳細は図面参照 | テンパライトドア:t=10mmクリアガラス ハカマ:H=90mm SUS |
■備考
|
この作図事例は、基本的なテンパライトドアの三面図とそのその詳細断面図ですが、注目すべきは親子ドアと言うことです。
このような作図は、描き慣れないとなかなか、おっくうな気もしますが、難しくないので是非、覚えておいてください。
私としては、多くの物件を携わってきましたが、建具図といわれる中では、テンパライトドアの図面が一番簡単なようにも感じます。
何故って?ガラスドアがあって、ピボットヒンジを描けば終わりなのですからね!(笑い)しかし、初心者の方はそうはいきません。ですから、もっと理解するためにも、
続きをご覧ください!応援、宜しくお願い致します。 ↓ ↓ ↓
にほんブログ村 
人気ブログランキング
●スポンサードリンク
ある程度の姿図を描いて、業者さんと打ち合わせをすれば、後は業者さんの方が現場でしっかり納めてくれますよ。
というのもね、
我々がサッシ類やアルミでの建具ので図面を描いても、業者さんの方で再度、図面を描き直すことが多いんですよ。
ただ、手ぶらでは打ち合わせは出来ませんので・・・・・。
何らかのモノを描いていかなければ、話が先に進みませんからね。
ですから、下手でもいいのですよ。
上記図面のように、サイズや形状等をしっかり描いていればいいのです。
この現場でも結局は、図面を描いて打ち合わせを済ませれば、それで終了しました。
ちょっと、肩たすかせって、感じもしますが、それでいいんじゃないでしょうか!
解らないことを、解ったように描くより、素直にやっていれば、業者さんがしっかり教えてくれます。
(私の経験上のことですが)
後、図面がやたら見にくいので拡大図を貼っておきます。
応援、宜しくお願い致します。 ↓ ↓ ↓
にほんブログ村 
人気ブログランキング
まー様
はじめましてオカモトと申します。
ブログを拝見させてもらい連絡しております。
現在、神奈川県で小さなビルの内装工事をしております。
図面の作成または、参考資料についてご相談に乗ってもらえないでしょうか?
宜しくお願いします。
okamoto@hill-am.com