リタイヤした平凡な図面屋です。仕事から解放されて日々のんびり気楽に暮らしてます。そんな奴が好き勝手書いてます!

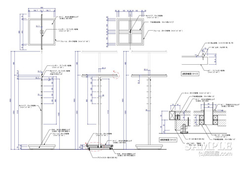
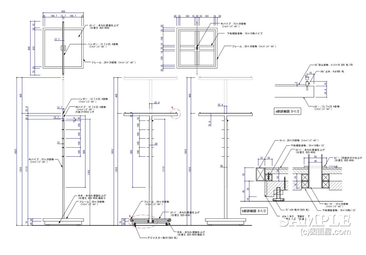
| ■サイズ | ■仕様 | |
| W450×D600×H1250 〜1650 | 本体:フレーム:20×30金物 (シャンパンゴールド) ステージ:木ウレタン塗装仕上げ (日塗工 D25-90A) | |
| ■備考 | ||
今回は、フロントゾーンで活躍する“ハンガー什器”の代表格、T字ハンガーラック(以下、THL)について話してみようと思います。
お店側の多くは、コスト重視で既製品を使ってるのが現実。まぁ、それで問題ない現場もあるけど……
百貨店とかブランド系のショップになると、そうはいかない。
やっぱり「店格」を上げるためには、既製品じゃ物足りないんですよね。だからこそ、僕ら“図面屋”が活躍できるわけです!
でも正直、このTHLってシンプルゆえに難しい。何気なく見えるけど、実は「どう魅せるか」が一番悩ましい。
過去にも何本も描いてきたけど、THLってやつはなかなか手強い相手。
今回の事例も、まさにそのひとつ。見た目は普通。でも「どこにデザイン性を持たせるか?」ってなると、簡単にはいかない。
そういう時は、百貨店をぐるぐる回って、実物からヒントを探してました。まず大事なのは、ショップ全体のデザインコンセプトを頭に入れること。
そのうえで、スケッチを何枚も描いて、ようやく方向性が見えてくる。とはいえ、機能は共通してるので、そこはちょっとラクできる部分でもあるかな。
でもやっぱり、たくさんのデザインを見てきた人ほど、引き出しが多い。「百個のコップを知っていれば……」って話、ほんまそれにつきるな。
だからこそ、若い人にはとにかく“見る・知る・描く”を繰り返してほしいなと思います!
応援、宜しくお願いします!
↓ ↓ ↓![]()
デザインランキング![]()
にほんブログ村
ま〜
図面屋ま〜では、若き同業者の方々のお役に立てるよう、今まで描き続けてきた図面資料やデザイン資料などをお伝えしております。 ただ、掲載している作図資料はあくまで資料であり、全ての店舗や施工に当てはまるものではありません。ですから、参考程度の資料とお考えください。
Powered by ライブドアブログ