
■サイズ
| ■仕様 |
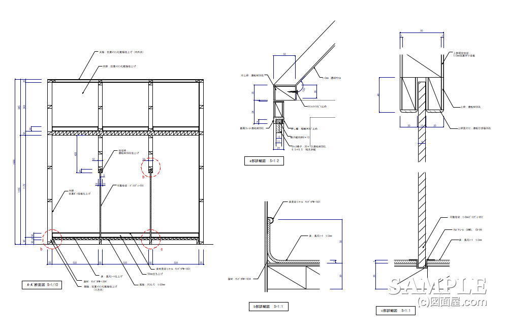
W1800×D900×H1900 図面参照 | 本体:唐松材OSCL仕上げ 建具:唐松材格子組OSCL仕上げ 窓部:t=3mmクリアアクリFIX |
■備考
|
この作図事例は
ペットショップやホテルなどで設置される
ペットホテルゲージの姿図と詳細図です。
過去にこのようなペット関連の店舗は経験が無かったのでちょっと戸惑いました。
しかし、優しい店長さんと打ち合わせの結果、生まれたのが今回の作図事例です。
それでは、進めていきましょう。
ただ、デザインや製作図としての内容はともかく、今回の
ペットホテルゲージを設計する上で
注意点が、2つほどあります。
では、続きでご説明しましょう!
頑張ってます!↓ ↓ ↓
デザインランキング
にほんブログ村
●スポンサードリンク
まず、やはり生き物を預かるうえで、
通気性をよくすること。決して什器内を密封することは許されません。(当たり前なこと)
しかし、ペットには臭い対策も必要です。
この場合は、やはり空調設備業者さんに下調べをしてもらった方が良いでしょう。
次に注意することは、
什器自体の使用素材です。
ペットが快適に過ごせる様にする為に、常に清潔でなければなりません。
内部は掃除がしやすく、耐久性のある素材を選ぶ事が大事です。
お薦めするなら、什器内部の仕上げ材として抗菌タイプの化粧板仕上げ、床面には長尺シートを貼りました。
欲を言えばきりがありませんが、上記は最低限の注意点として覚えておいてください。
めったなない業種ですから、いつ役にたつかわ分かりませんがね!(笑)
最後に、今回の作図事例であるペットのホテルゲージの断面図と部分詳細図を以下に添付します。
しっかり、読み取ってください。

各ゲージの仕切り板はペットゲージに適した特殊な化粧板を使用しています。
頑張ってます!↓ ↓ ↓
デザインランキング
にほんブログ村