綜合案内エリア内のカウンターバック什器_その1|図面屋ま〜の "Easy Living" な日々

図面屋ま〜の "Easy Living" な日々

リタイヤした平凡な図面屋です。仕事から解放されて日々のんびり気楽に暮らしてます。そんな奴が好き勝手書いてます!

綜合案内エリア内のカウンターバック什器_その1

counter back2
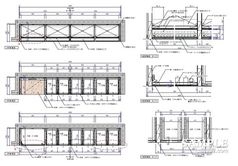
■Data NO.
■サイズ■仕様
 2600×2200×450 木部:木下地シート貼り仕上げ
 
■備考


今回は、百貨店や大型商業施設にある綜合案内エリアにあるカウンターバックの作図事例を2日に分けてお届けします。

役に立つかどうかは分かりませんが、あまり見ることも無い図面ですので、是非参考にしてください。

ちなみに、私はこういった什器をオペレーション什器と呼んでますが、定かではありません。

ここでの主な業務は、主にショッピングに役立つ店内案内、オリジナルの会員カードの発行などがあります。

その他、施設に点在する様々なサービスを受けることができるサービスエリアです。

もちろん、カウンターも設置されていますが、カウンターは同じようなモノが当サイトにありますのであえて割愛しました。

それでは、続きをご覧下さい!

頑張ってます!
↓ ↓ ↓

デザインランキング
にほんブログ村 デザインブログへ
にほんブログ村

●スポンサードリンク

このカウンターバック什器って、けっこうな機能を備えていますので、各所をしっくり見て次に進めなければなりません。

ですから、トップの図面はしっかり頭にたたき込むようにしてください。(ちょっと時間を取ります)

それでは、次にどれほどの機能があるか見てみましょう。

この場合、作図順序として平面詳細図(平詳細)をお目にかけます。

counter back1

左の図面は、平面詳細図といってこういった機能の多い家具図には必須です。

単純に断面詳細図で処理する人もいますが、これは間違いで家具屋泣かせになります。
ですから、ここは邪魔くさそうですが、しっかり描いてあげてください。

右に表現しているのが、平詳細それぞれの拡大図です。
ここまで描けば、十分に高評価をいただけます。

作図難易度は、中の上って感じですが初心者の片も時間をかければ十分熟せるレベルと感じます。

ただ、時間はかなりかかりますので、そこは今後のことを考えて挑戦する事を薦めます。

最大の注意点は寸法間違いをしないことです。
最初に、下書きを確認してフィニッシュすることにしてください。

難しい図面ではないが間違いやすい図面でもありますので、次回までしっかり勉強してください!以上です!

最後に、平面詳細図の拡大図を載せて終了とします。

a detail

b detail

c detail

上記の平面詳細がどの位置にあるかは確認しておいてください!

余田和でした。

頑張ってます!
↓ ↓ ↓

デザインランキング
にほんブログ村 デザインブログへ
にほんブログ村
2023/11/17| コメント:0Edit

コメントする

名前
 
  絵文字
 
 
Copyright © 図面屋ま〜の "Easy Living" な日々 All Rights Reserved.
当サイトのテキストや画像等すべての転載転用・商用販売を固く禁じます