今回は、レジバックなどのバックスペースで活躍する什器の紹介です。
主に、レジまわりの雑物の整理・収納の機能をまとめた集約型オペレーション什器です。
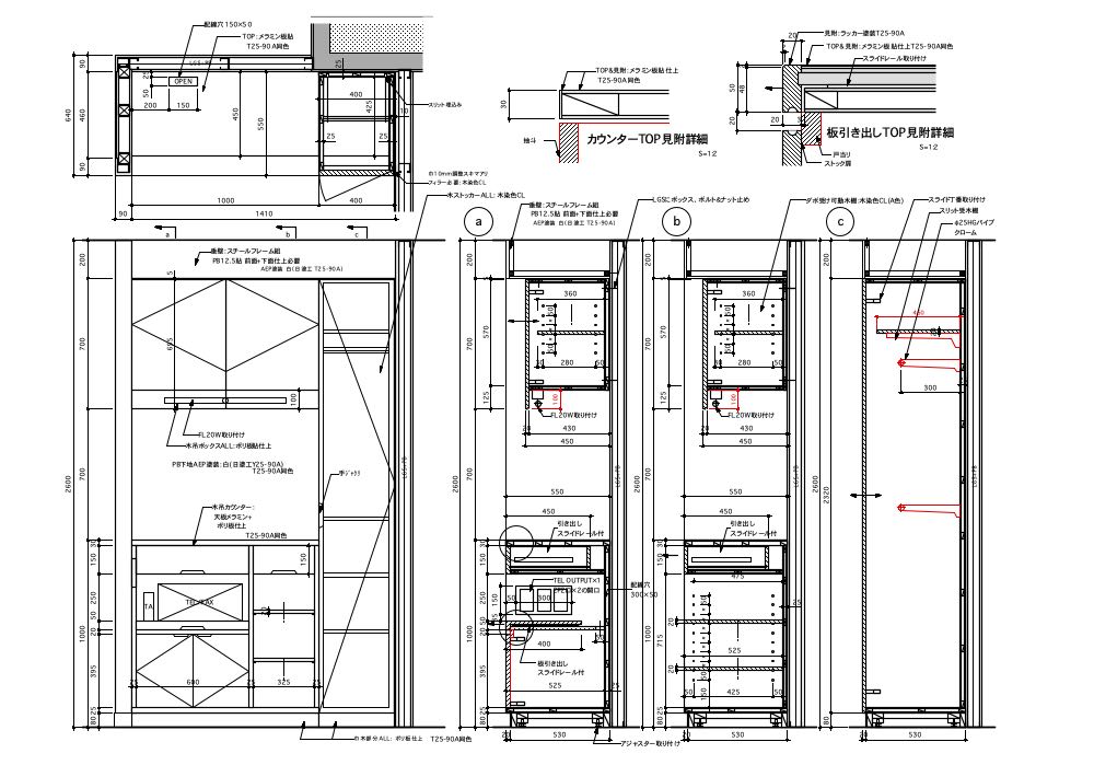
作図は、作図は三面図と断面図三カ所です。
売り場面積が小さい店舗の場合、最低限の商品陳列スペースを確保するため、どうしても面積的にジレスペースにしわ寄せが来る事があります。
この事例はそんな狭い空間を有効に利用して、サービス機能を集約しています。
狭い空間に様々な機能を詰め込んだ形になりますが、店舗を設計する際のは知っておきたい什器のひとつです。
本来このレジバック什器はお客様から中身を隠すために、引き違いや観音扉等を取り付ける事が望ましいと考えます。
しかし、有効スペースがあまり取れない場合は、扉類は付けずオープンとしも問題ないかと考えます。ただ、その際はお客様に見られても問題ないものを収納する方が良いでしょう。
それでは、設計上の注意や、設計ポイントとなる作図などをお目にかけます。
続きをご覧ください!
頑張ってます!↓ ↓ ↓
デザインランキング
にほんブログ村
●スポンサードリンク
まず、この集約型オペレーション什器での注意点をお教えしましょう。
作業カウンターと天袋との間に設けた空間の高さですが、必ずスタッフが作業をする際に圧迫感を感じさせない程度の高さが好ましいでしょう。
また、手元灯の取付も不可欠になるので必ず覚えておいて下さい。
仕上げは塗装でも化粧板でも良いですが、極力ワンカラーでまとめた方が望ましいですね。
あくまでも売場のユーティリティとして機能するので、環境の一部としてとらえてデザイン・設計をして下さい。
それでは設計ポイントとして、以下の作図を添付しておきます。

この三つの断面を理解して描いて見てください。
図面は、拡大できるようにしています。
最初は期間がかかりますが、この断面図は他の図面にもよく出てくる箇所があります。
ですから、まずはしっかりかけるようにしておいた方が良いでしょう。
では、頑張ってください。
仮に、理解しがたいとなれば、お問い合わせください。
最善を尽くします。
頑張ってます!↓ ↓ ↓
デザインランキング
にほんブログ村