
■サイズ
| ■仕様 |
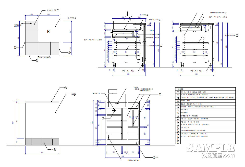
W800×D800×H1050 | 本体:ナラ材染色CL仕上げ 一部:化粧板仕上げ トップ:石貼り
|
■備考
|
コーヒーショップのレジカウンターの図面事例ですが、作図的にしっかり描けているようなのでご紹介しました。ちなみにこの什器は、
大手コーヒーチェーン店のものです。過去に、2〜5物件に携わりました。
もちろん
コーヒー豆販売も行っていています。ただ、そのカウンターの機能が多かったので、記憶に残っています。とても厄介でしたが、勉強になりました。ですから、是非覚えておいてください。
それでは、その機能と断面詳細図をご覧下さい。
頑張ってます!
↓ ↓ ↓
●スポンサードリンク
機能をお知らせする前に、レジカウンターの位置を確認しておきます。赤でマーキングしたカ所が、レジカウンターになります。2カ所配置しています。
このコーヒーチェーン店では、店舗の面積にかかわらずレジは2カ所とマニュアル指定されています。

それでは、断面図と前述した機能をお知らせしましょう。以下画素の表となりますが、仕上げも一緒に入っているので、見間違いが内容に願います。
まず、断面詳細図を見てください。表を見ながら、断面図と照らし合わせれば理解が早いと思います。

最後に、レジカウンターの2カ所の断面詳細図を載せておきます。

作図でもお解りのように、
仕様も仕上げも変わることが無いために、図面上には必ず仕上げ表を設けます。(上記の表)
我々設計者は、それに従って仕上げ番号を付けていくと行ったやり方です。これなら作図時間も短縮されるってことですね。マニュアルがあれば助かります。
デシャップレジカウンターは、各店によってかなりの変化がありますが、このレジカウンターは変わることはありません。
ただ、このレジカウンターは、このチェーン店特有の什器ですので、汎用性はありません。あくまで参考図としておいてください。
機能というモノは、それぞれの店舗によって違いがあります。そこは良く注意してください。ありがとうございました。
頑張ってます!
↓ ↓ ↓