
■サイズ
| ■仕様 |
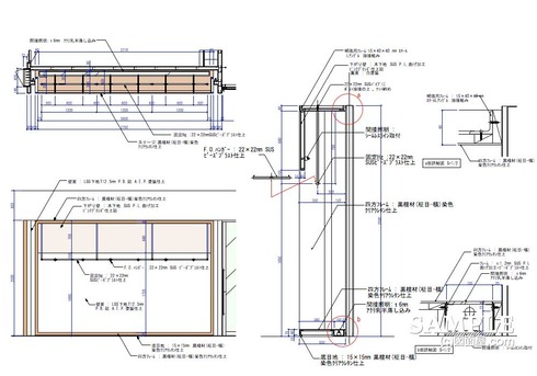
W3750×D500×H2500 図面参照 | フレーム:黒檀材(柾目-横)染色クリアウレタン仕上 下がり壁 : 木下地 SUS プレート曲げ加工ピンクブロンズ仕上貼 |
■備考
|
今週は、壁面のバーティカルゾーンをお届けしました。一旦今日で、壁面関連はお休みします。が、また折りを見つけて新たな作図をお届けします。
さて、この作図事例は四方を木工フレームで括り、アイキャッチャーとなるVMDを表現するエリアです。なにしろ、間接照明をふんだんに使っているところが、
キモです。
まず、壁面両サイドに1カ所。(壁面の平面詳細図参照)次に幕板に1カ所。嬉しく感じたのが、ステージ奥にもアッパーで、照らしてるんです。間接照明というより、これは演出照明と言った方がよいでしょう。
それでは、続きを見てください。
頑張ってます!↓ ↓ ↓
デザインランキング
にほんブログ村
●スポンサードリンク

上記が、前述した両サイドの間接照明です。この手法は、ほとんどの店舗でよく使われています。
一般的であって、ちょっとした空間をこの手法を使うことで、その他の壁面と差別できます。
かろうじて、ステージトップに演出照明の部分が見えると思うのですが、ちょっと問題があります。というのも、照明器具とTOPの乳半アクリとが近すぎて器具のシルエットが見えてしまう恐れがあります。
まぁ、ステージ奥ですから目立た無いとは思いますが、やはりこういったことは気を配る必要はあります。
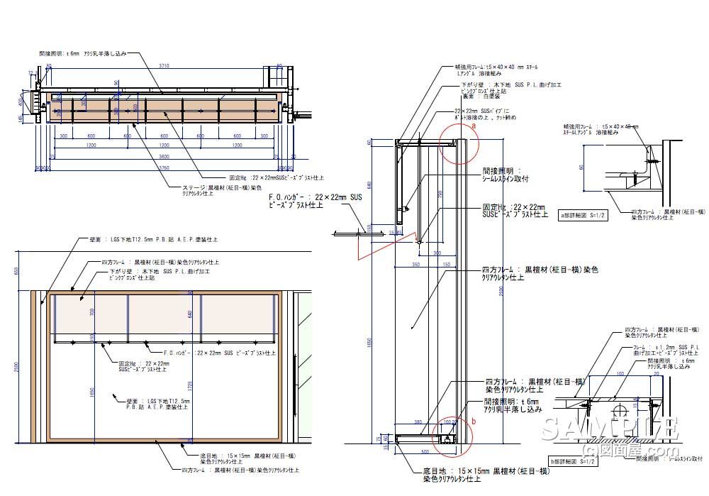
以下の作図を読みとってください。確かに器具とトップ乳半アクリは接近してますね。ですから、仮に皆さんがこの装置を使うときは、器具の変更を考えてください。
例えば、エースラインかテープライトにするのが望ましいですね。ここは
大切なポイントです。

それでは、つぎに進見ます。
ここ上部には、ピンクブロンズ加工したSUSプレートを貼った幕板を取り付けていますが、このバックにも間接照明が入っています。もう、致せリ尽くせりです。
やはりこれほどまでに、この壁面を重要視しれいるわけです。尚。この幕板にはサインやグラフィックスペースとして活用出来、ショップイメージを訴求する事も可能です。

ただ、ここで気になったことがあります。それはハンガーパイプの長さです。790mmもあるので、お客様が商品を触るたびにハンガーが前後に揺れるかもしれません。
繁盛店ならなおさら気をつけなければなりませんね!
私なら790mmの中間の壁面から補強用のステイを設置します。ピッチは天井からの吊り金物wと同じにします。そうすれば、それほど揺れることは無いと感じます。
もう一箇所の注意点は、壁面と天板を固定している部分です。(a詳細図を参照下さい)
この部分は、最も荷重が掛かる所なので、あえてLアングルで固定するようにしました。

何でだか分かりませんが、什器の施工図ばかり意識してしまって、肝心の什器の良さが欠けてました。ご容赦!
間接照明を使ったこの什器のうれしい機能といえば、ハンガーパイプにあります。もう一度、断面詳細図を見てください。
フェイスアウトハンガーが目に入るはずですが、OKですか?
使い方といては、店舗って繁忙期と閑散期があるんです。ここで役に立つのが、このフェイスアウトハンガーなのです。
閑散期は、この壁面全部をフェイスアウトで見せ、繁忙期に入った頃は、フェイスアウト+ショルダーアウトで、お客様にアプローチするんです。
そして、バーゲンになればハンガーパイプ全て、ショルダーアウトってわけです。旨く考えられたシステムです。どうぞ、しっかり真似って下さい。
頑張ってます!↓ ↓ ↓
デザインランキング
にほんブログ村