
■サイズ
| ■仕様 |
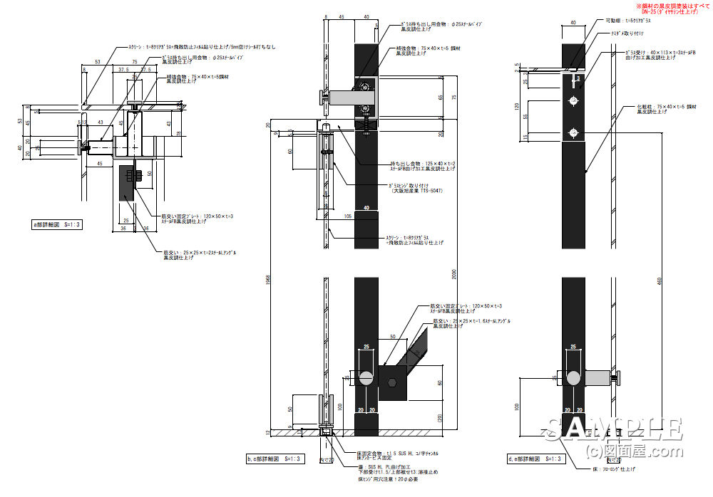
W1852×D506×H3500 図面参照 | 支柱:75×40スチールコの字曲げ加工黒皮調仕上げ スクリーン:t=8クリアガラス+飛散防止フィルム貼り 筋交い:25×25スチールLアングル黒皮調仕上げ 棚受け:スチールFB曲げ加工黒皮仕上げ スクリーンガラス受け:φ25スチール丸パイプ黒皮調仕上げ |
■備考
|
この図面事例はスチールの意匠柱とガラスを組み合わせた、いたって変わったショーケースです。
珍しいと言うより、ちょっとやっかいな代物で、この収めずにはかなりの時間を要しました。
説明が、どこまで旨く出来るか心配ですが、単純な収めでないだけにちょっとちょっと長くなるかもしれません。
それでは、進めますので続きをご覧ください!
●スポンサードリンク
まず、二面のスチール組した帆立に持ち出しパイプを溶接し、そこにガラススクリーンを四方を囲むように取り付け、ショーケースとします。
かなり大がかりな工事となり、要所要所をしっかりと固定しないと成り立たない造作です。
まず、このガラスショーケースを支えるスチール組の帆立についてですが、ガラスを固定する支柱となるので、まずは天井と床への固定が最重要となります。
床へは床材を貼る前に、アンカーボルトでしっかりと固定するのが良いでしょう。
次に、天井面への固定は、右上の断面図をご覧頂くご理解できると思われますが、この事例では天井のプラスターボードを貫通し、天井下地材に固定する方法をとっています。
この固定方法も間違いではありませんが、強度的に不安が残りますね。
10ミリ厚のガラスを四面も支えるのですから、天井スラブにアンカーで固定する方が望ましいです。
詳細図にボルト+ナットで固定しているL型のプレートは化粧柱がコの字型なので蓋をする為に取り付けています。
a部詳細図は、持ち出しパイプとガラススクリーンとの納めを描いています。
ガラスを持ち出しパイプとローレットビスで挟みこんでの固定です。この手法は持ち出しサインプレート等の収めにも応用出来ますので覚えておいて下さい。
b,c部詳細図は、ガラスヒンジを使ったメンテナンス扉部分の断面図を描いています。
ここで最も重要になる所が上ヒンジの部分です。
回転での荷重が一番掛かる箇所でもあるのでヒンジが勝手に外れてしまわないような受け金物の「深さ」に注意して下さい。
また、ヒンジは既製品を使用するので、クリアランスや各部の最低寸法等もメーカーのカタログ等で必ず確認して下さい。
e,d部詳細図は、ガラススクリーン内部の固定棚部を描いています。
ガラスがずれない様にナミダメ(透明の樹脂パッキン材)を取り付けていますが、万が一の事も考慮してフレームにガラスを落とし込む収めが良いかもしれません。
この場合意匠的な問題も関わってきますので、事前にデザイナーさんと協議が必要です。
かなり複雑なショーケースなので、参考にはならないと思いますが、「こういうのも有るのです。」程度で知っておいてください。
頑張ってます!↓ ↓ ↓
デザインランキング
にほんブログ村