
■サイズ
| ■仕様 |
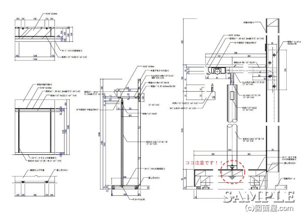
W1500×D550×H2080 図面参照 | 背板:木工下地クロス仕上げ ステージ:木工下地化粧板仕上げ 支柱:φ38.1スチール丸パイプゴールドメッキ仕上げ 棚:t=8クリアガラス |
■備考 210720更新
|
今回は、『ステージ付き壁面固定のハンガーラックの納め方とは!』をお届けします。昔よくはやったスタイルの版画ラックですが、その納めは!というと意外と難しいものです。
固定方法は、まず、支柱と棚受けでもある振れ止め用角パイプを、ステージと背パネルにインロー式を使って固定します。
振れ止め用の角パイプと背パネルとの納め方は、このサイト記事にもある壁面固定式のハンガーパイプや固定棚の納め方と殆ど同じですので、今回も覚えておいて損はありませんね。
この事例の場合、振れ止め用角パイプの先端には棚下照明があるので、電源配管としてもこの角パイプを兼用しています。
電源は背パネルの裏面にあるコンセントにつながっていますが、什器を連結して設置することがあるので、予備のコンセントを取り付けています。
いわゆる渡りコンセントです。
そして、隣の什器へ電源を渡すため、もう一工夫しているのが15×15mmの底目地加工して配線スペースを設けているところです。(什器裏面の下部)
これは真似をするべき点ですね。
それでは次に進みますので続きをご覧下さい!
頑張ってます!
↓ ↓ ↓

デザインランキング

にほんブログ村
●スポンサードリンク
注意すべき点は、ハンガーラックの支柱とステージを固定する納め方です。金物と木什器の二つの異素材を現場で組み上げるので、どうしてもズレが生じてしまう事があります。
そのため、現場で加工しやすい木什器のステージ側で取り付け位置を調整可能にしておくことが大切です。そこでどうするかと言うと!
(ここ注意です!!をチェック)まず、ステージには事前に、支柱固定用にインロー式の短いパイプを付けておく。そして、床固定を設定してから、背パネルの振れ止め用角パイプをインロー式にて設定固定します。
この場合、まだビス止めはしません。
ちなみに、背パネルに取り付けているインローパイプの奥行きは、振れ止め用角パイプの1/2以上必要です。
最後に、現場での微調整後、フィニッシュとしてビス止め処理して完成となります、図面ではミスが明確な位置になっていません。ですから、私の場合は、
固定方法要確認って赤色で指示しておきます。
いずれにせよ、図面は単なるメッセージです。造るのは職人さんです。ここは厳しいよか、厄介と感じたら、何らかの方法で、お願い事を書くのもひとつの案です。
頑張ってます!
↓ ↓ ↓
デザインランキング
にほんブログ村