
■サイズ
| ■仕様 |
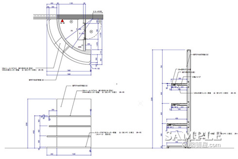
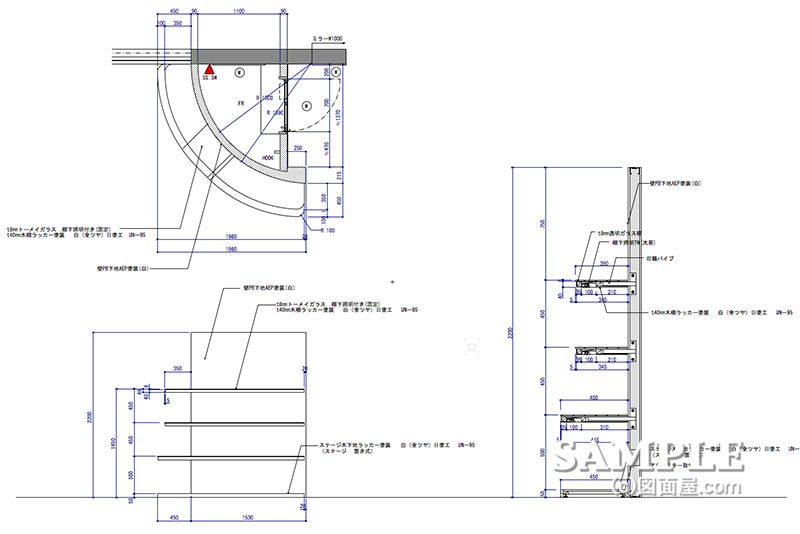
W1980×D≒2035×H2200 図面参照 | 壁面:LGS+PB下地AEP塗装仕上 固定棚:木工下地ラッカー塗装仕上+t8クリアガラス ステージ:木工下地ラッカー塗装仕上
|
■備考
|
店舗によっては、フィッティングルームの外壁面は、必ず活用、必ずしなければなりません。
今回も、百貨店のテナントなどでは珍しくないケースです。
要はスペースがあまりとれないテナントでの一例ですが、フィッティングルームについては今回は述べることはありません。
主題は、インロー式での壁面固定棚のでのお話です。
頑張ってます!↓ ↓ ↓
デザインランキング
にほんブログ村
●スポンサードリンク
今でもそうですが、固定棚ってどうして納めるんですかって、メールがよく来ます。
まあ、初心者の方ならプラスターボードの後ろがどうなっているかも解らない状態で、いきなり固定棚が、にょきっと出ていたらびっくりするでしょう。

実は、上記のような納めになっているのです。
壁面から出るインロー(印籠)パイプとベースになるスチールベースが確認できますか?
このパイプとスチールベースパイプとになるものを溶接するしたものを、壁面下地であるLGSに取り付けるのです。
取り付け方法は、様々な条件がある中、溶接でもビス止めでもいいでしょう。
現場での火気厳禁ってのもあるんで、私はいつもビス止めを指示します。
インローパイプの長さについて、目安として棚奥行きの約半分以上といいたいところですが、この場合は棚板照明が入っているので210mmが精一杯でした。
最終的に、棚を固定する際は底面よりビス止めとなります。
このサイトにも「インロー式」での固定方法を記した投稿がありますので、絞り込み検索で探してみてください。
頑張ってます!↓ ↓ ↓
デザインランキング
にほんブログ村
●スポンサードリンク