
■サイズ
| ■仕様 |
W1200×D40×H2600 図面参照 | 石枠:200×400御影石(ネムリ目地) ミラー:t=5mmクリアミラー貼り
|
■備考 |
この作図事例は壁面に取り付けた姿見の一例です。
三方を石貼りで囲んだゲートにミラーはめ込んだのフォルムとなっています。
かなり凝ったとも言えますがが、出来れば石貼りを四方にを廻した方がベストだったと考えます。
経験上、こういったケースは過去にも多くありましたが、納めについてはその都度悩まされました。
一度しっかりまとめねばと思っていた矢先だったので、今回は良い機会たと思います。
それでは、その納めを考えて見ましょう。
続きをご覧ください。!
頑張ってます!↓ ↓ ↓
デザインランキング
にほんブログ村
●スポンサードリンク
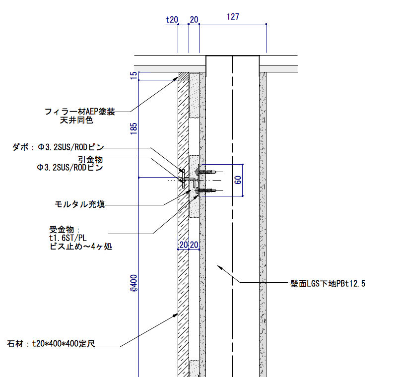
今回の事例では石張りの面積はほとんどない状態です。
とはいっても、壁面に対しての石貼りの施工方法では、基本的に
圧着工法と乾式工法の2種類があります。
この作図事例では
乾式工法としてますので、以下の作図で確認してください。

上の断面図では、壁の下地材に固定されたL字型の金物で石を引っ掛ける方法が読み取れます。
これについては、
石材の重量が重く圧着工法では剥がれる可能性もあるので乾式工法を選択しました。
この
乾式工法は基本的に外部や下地材がコンクリートブロックや駆体壁の場合に使われる工法であって、店舗内装ではあまり用いない工法でもあります。(例外あり)
というのも、引っ掛け金物もアンカー止めが主流なため、工期とコストが懸念材料となるからです。

(乾式工法) (圧着工法)
(※
画像:石にしま専科より引用)やはり、店舗内装での石材貼りは圧着工法が主流であり、工期が無い時には助かります。
その中でも、ケイカル板やプラスターボード下地に適している
ボンド圧着工法が多く使われています。
ボンド圧着工法とは、2液性の混合樹脂ボンドを専用のハケで、
1mm〜2mm程度を下地材に塗ります。
そして、石材を貼り付けて行く工法で
モルタル圧着工法も同様にモルタルをボンドの代わりに使用する工法です。
最後に、
平面詳細図を添付しておきますので、確認しておいてください
ミラー貼りと石材貼りとの絡みが読み取れますね。
前述の
断面詳細図と平行してしっかり理解してください。
この事例は、見方によればそれ程たいしたことはありませんので、あなたにも描けますよ!
それでは、今回は以上とします。ありがとうございます!

応援、宜しくお願い致します。
頑張ってます!↓ ↓ ↓
デザインランキング
にほんブログ村