
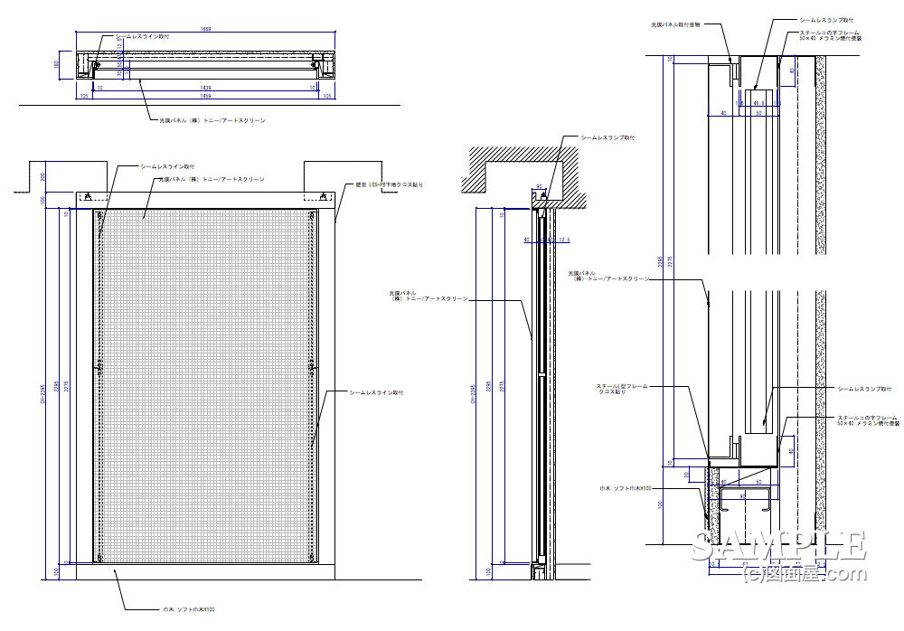
| ■サイズ | ■仕様 |
| W1669×D180×H2395 | 本体造作:LGS+PB下地クロス仕上げ 光膜パネルベース:スチールコの字チャンネル焼き付け仕上げ
|
■備考 |
壁面に間接照明を施した作図事例ですが、この場合は演出照明と呼んだ方が適切かもしれません。
この手の手法は、間接照明の基本形であって汎用性があります。
ちょっとした空間に間接照明を使い、演出をする事でその空間のイメージは確実にアップします。
カラーコルトンとは違って、商品との絡みはありませんので、ショップのちょっとした空間に配置すればインパクトはありますね。
続きには、この事例の
断面詳細図も添付してますのでご覧ください。
それでは、続きをご覧ください!
頑張ってます!↓ ↓ ↓
デザインランキング
にほんブログ村
●スポンサードリンク
前述した使用場所(ショップ内)とは別に、
ショールームやホテルのスキマ的空間に演出照明として設置するのも良いアイデアでしょう。
以下を参照してください。
ただ、このままだと締まりが無いので、植栽などと絡ませるのもアイデアです。
しかし、この場合は光源の巾が広く、あまり良い例とは言えません。(参考までに)

写真提供元サイト⇒株式会社トニー最後に、
縦断面詳細図をご覧になりながら、話をすすめます。
納め上での注意点!
昭明器具からフロントの盤面までの寸法について、
80mm〜100mmに設定することをお薦めします。
また、この事例での間接照明の盤面(光膜パネル)にはメーカー製品を使用していますので、造作として組み上げるのは、壁自体とベースとなるコの字チャンネルまでとします。
ここでは、クリアランスやベースサイズなどをメーカーさんと調整する必要があるので、こちらも注意して下さい。
次に、
図面上での注意点と問題点を挙げておきます。
光膜パネルの透過度がどの程度あるかにもよりますが、照明器具の背面には仕上げ材が必要です。
断面図を見てもらえれば、お解りでしょうが内部が軽量鉄骨(LGS)むきだしになっています。
照明の反射効果も考えて、プラスターボード(PB)か、不燃化粧板等で塞いでおく方が、望ましいでしょう。
どちらも
白色で仕上げる事が順当ですが、アルミホイル類の反射シートなどでも問題はないかと感じます。
以上です。
長々とお付き合いありがとうございます。
尚、乱文についてはご容赦を!
応援、宜しくお願い致します。
頑張ってます!↓ ↓ ↓
デザインランキング
にほんブログ村