
■サイズ
| ■仕様 |
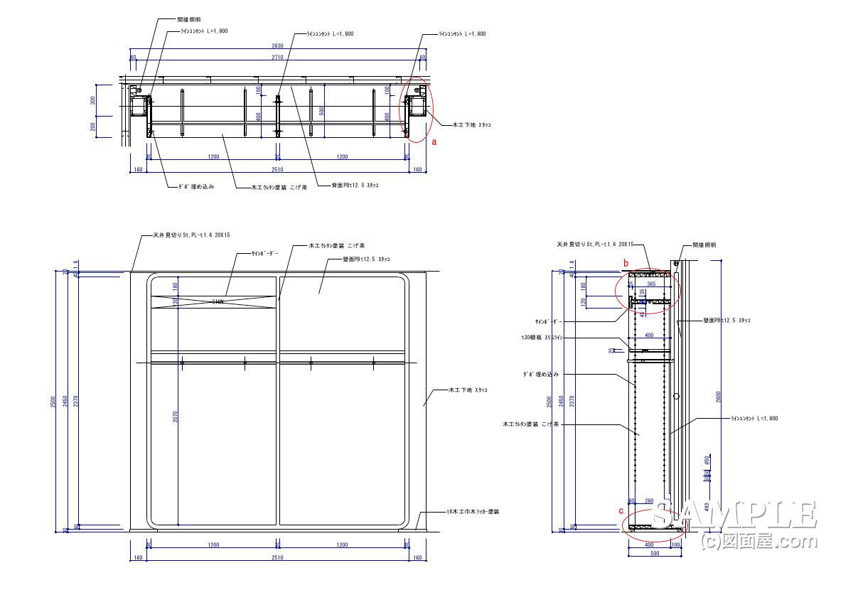
W2830×D500×H2500 図面参照 | 本体:木工ウレタン塗装仕上げ(こげ茶) 側板:木工下地スタッコ仕上げ サインボーダー:化粧板仕上げ 壁面:PB下地スタッコ仕上げ |
■備考 作図日:不明 業態:アパレル全般
|
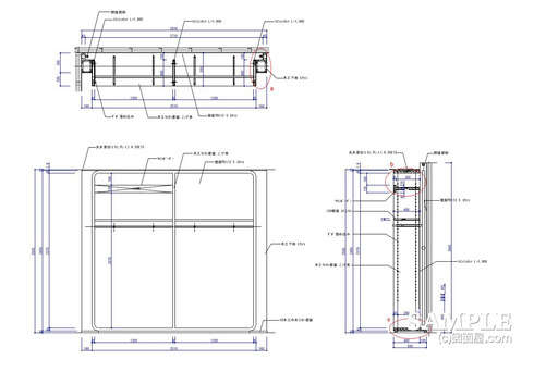
【作図解説】この作図事例は壁面造作什器の姿図と断面詳細図です。
天井までの壁面什器で注意すべき点は、据え付ける際に高さ調整が必要になるところです。
必ずしも天井高が、図面通りとはいかないので、天井と什器の間に高さを調整する部材を取り付けます。
床面の巾木で調整する場合もありますが、天井面での調整が多いですね。
それは天井の方が仕上げ材の加工が比較的し易い事と、天井と什器の間に出来た隙間はさほど目立たない事が大きな理由です。
それから、もう一つ重要な点があります。
2000mm以上の大きさで、内部がオープンになっている什器は横揺れに対して耐久性が弱い為、妻板の強度がとても重要になってくるのです。
それでは続きをご覧ください!応援よろしくお願いします ↓ ↓ ↓
デザインランキング
●スポンサードリンク【作図ポイント】妻板の強度挙げるには、厚みを太くするか、内部に補強材を仕込むかのどちらかになります。
まず、厚みを太くする場合は、外枠とのバランスに注して意匠を崩さないようにして下さい。
意匠的なバランスもありますが、40mm〜50mmもあれば問題ないでしょう。妻板内部に補強材を仕込む場合は、木軸に角パイプフレームを抱き合わせれば良いわけですが、あまり小さすぎるサイズの角パイプでは補強にはなりませんので注意して下さい。
この壁面什器では20×40mmぐらいの角パイプが妥当ですね。
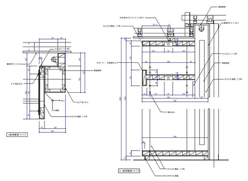
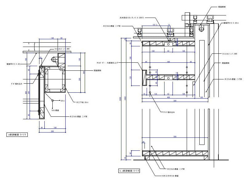
下記図面は各部の詳細図となります。

この壁面什器の詳細図は表現的に問題があります。
まずはa部詳細図を見てもらうと、外からは見えない箇所に仕上げ材を貼っていますね。
これはとても無駄が多い表現です。
見えない箇所に仕上げ材は不要ですので必ず消すようにして下さい。
続いてb,c部詳細図では、天井面に取り付けた高さ調整材の位置が問題です。
基本的に高さ調整材は設置後に取り付ける部材なのでこれでは手が届きません。
もっと手前に取り付けるようにして下さい。
応援よろしくお願いします ↓ ↓ ↓
デザインランキング