リタイヤした平凡な図面屋です。仕事から解放されて日々のんびり気楽に暮らしてます。そんな奴が好き勝手書いてます!

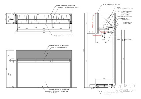
| ■サイズ | ■仕様 | |
| W3300×D500×H2000 図面参照 | ゲート:LGS+PB下地AEP塗装 HGパイプ:スチール角パイプクロームメッキ仕上げ | |
| ■備考 作図日:2010.02.15 業態:レディースショップ | ||
【作図解説】
この作図事例は、壁面固定式ハンガーラックの姿図と断面図です。
ハンガーパイプは天井から吊る構成としており、フェイスアウトパーツの取り付けにも対応できる仕様になっています。
上部には欄間を利用したサインスペースを設け、商品陳列と視認性の両立を意識した構成です。
ハンガーパイプにはHGパイプ(16×16角鋼)を採用し、見た目をスッキリさせながら剛性も確保しています。
吊り支柱は、天井の下地材に対してボルト+ナットで確実に固定する納まりで、その都合上、垂れ壁のプラスターボードは支柱固定後に施工する流れになります。
施工順まで含めて読み取れる点が、この図面の実務的な良さだと思います。
それでは続きをご覧ください!
応援よろしくお願いします
↓ ↓ ↓![]()
デザインランキン
【作図ポイント】
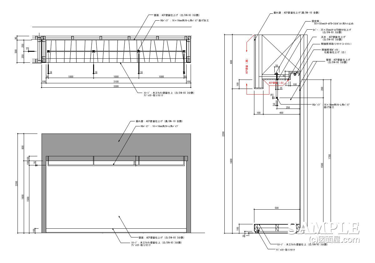
この図面で押さえておきたいポイントは、フェイスアウトパーツとHGパイプの取り合い部分、そして欄間部に組み込まれた間接照明の扱いです。
フェイスアウトパーツは、HGパイプを曲げ加工した形状で受ける構成となっており、意匠性を保ちながら強度も確保しています。
納まりが直感的に分かりにくい部分なので、本事例のように詳細図で「どこで受けて、どこで固定しているか」を見せておくのは有効です。
また、欄間に設けたサインスペースには間接照明を組み込み、壁面全体をやわらかく照らす演出としています。
照明器具が視界に入りにくい位置に納められているため、商品へのグレアを抑えつつ、上部サインの見え方を整えやすい構成です。
仕上げがAEP塗装で統一されていることもあり、反射光が回りやすく、売り場の印象を落ち着かせる効果も期待できます。
【私感+まとめ】
欄間をサインスペースとして活用しつつ、ハンガーラックとしての機能もきちんと成立させた、実務向きの作図事例です。
特に、天井下地への固定方法とPB施工順を前提にした納まりは、現場でのトラブルを防ぐ意味でも大切なポイントになります。
フェイスアウトパーツ周りは、作図を描く側も見る側も迷いやすい箇所ですが、この事例のように詳細図で補足しておけば理解度が一気に上がります。
間接照明まで含めて「什器+演出」を一体で組み立てているので、単なるハンガーラックではなく壁面演出として成立しているのも良いところです。
シンプルな構成の中に、納まりと見せ方の工夫が入った基本形として、押さえておきたい一例だと思います。
応援よろしくお願いします
↓ ↓ ↓![]()
デザインランキン