
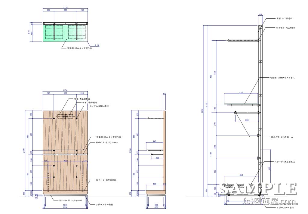
| ■サイズ | ■仕様 |
W1176×D510×H2100 図面参照 | 本体:木工染色仕上げ システム:ロイヤル ベルラ |
■備考
|
この作図事例は、ディスプレーパネルにも活躍できる壁面システム什器の一種です。
今では壁面で使用される定番の什器となっていますね。
ただ、スリットを使用せず「ベルラ」というシステムを仕様しているあたりは、店格を上げるためと考えられます。
というより、きっと高級店なのでしょう。
この形状でスリットを使えば、どこにでもある什器となります。ちょっとがっかりします。
店舗全体イメージもきっと良くないと考えます。
また、上部のフェイスアウトハンガーを取り付けるにせよ、スリットの場合はシンプルさが損なわれます。(スリットが丸見えになる)
ただこのベルラにもデメリットはあります。
それについては、
続きをご覧ください。
頑張ってます!↓ ↓ ↓
デザインランキング
にほんブログ村
●スポンサードリンク
それはスリットに比べて、コストや、取り付け手間などが掛かってしまうことです。
しかし、今では人気のシステムとも言えます。
仮にスリットを使うならば、ディスプレーパネルとはならないと確信します。
ただ、気になるところは、仮にディスプレーパネルとして使うなら、床から1900mm〜2100mm辺りにもう1ヵ所「ベルラ」を付けるべきでした。
何故だかお分かりでしょ!
それでは次に進みます。
設計上でのポイントは、商品が陳列した状態で背パネルが、おじぎをしないようにするため、何か補強を考えておく必要があること!(現状の作図の状態で)
背が高い壁面の木製什器には必ずとつきまわる問題です。
背板のトップから壁面に向かって固定用の長いビスを揉み込んで固定する方法もあります。
が、これはあくまでも現場対応なので、文言で伝えています。
おじぎ注意ってね!、赤でマーキングです 。
頑張ってます!↓ ↓ ↓
デザインランキング
にほんブログ村