
■サイズ
| ■仕様 |
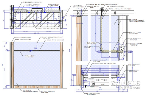
W2600×D900×H2600 図面参照 | 本体:PB下地+木目シート貼り及び、クロス貼り HGパイプ:φ32スチールシャンパンゴールド仕上げ |
■備考
|
結婚式場には、必ず併設されている
ウェディングドレスのレンタルショップがあります。
今回は、その店舗内に多くのドレスを収納するために設けた
壁面固定ハンガーバーの作図事例です。
フォルムは違えど、このサイトにも同じような作図事例が少なからずあります。
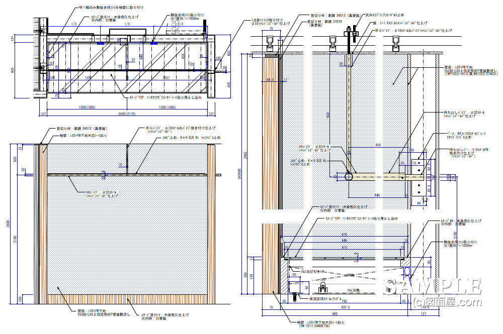
ただ、他のハンガーバーと違う点は、ドレスという高級商品を扱うがゆえに、その寿命を保つために家具に
熱抜きファンを取り付けたことです。
それ以外は、つくりも仕上げもさほど高級な素材は使っていません。
参考程度でご覧ください。
では、続きを!
頑張ってます!↓ ↓ ↓
デザインランキング
にほんブログ村
●スポンサードリンク
図面を見ていただければお分かりのように、納めもそれほど凝ったところはありません。
ハンガーパイプの長さが、普段のショップと違いが、かなり長いので中央で
固定パイプを取り付けている辺りです。
まあ、当たり前のことですがね!
ちょっと奇をてらったところと言えば、下部にムードを助長するために
間接照明を配した程度でしょう。
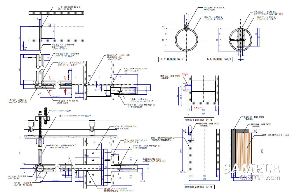
注意していただきたいのは、以下の詳細図は大変勉強になりますので、しっかり覚えるようにしてください。

各部位の納まり図が明確に表現されています。
壁面固定ハンガーバーのインロー式での納めは、施工する側にとっては、ここまで描いてもらえれば、非常に有難いと感じます。細かく描くことも、その人柄がでますが、かなり気配りされていると感じますので、みなさんも是非参考にしてください。
尚、図面のハンガーパイプにこぼれ止めなる表現がありますが、この呼び名はどうかと思います。
正式名はよく分かりませんが、私の場合何も指示せずに仕上げだけを描きます。
このシャフトは、ハンガーパイプの仕上げが軟弱なものだと剥げ落ちることが多く、気配りのある設計者は、必ずこれを指示しますね。
最後に「熱抜きファン」のサンプルを添付しておきます。

本日は以上です。ありがとうございました。
頑張ってます!↓ ↓ ↓
デザインランキング
にほんブログ村