
■サイズ
| ■仕様 |
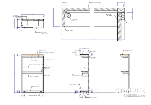
W1200×D500×H2200 図面参照 | フレーム:スチール角パイプメラヤキ仕上げ(シルバーメタリック) 背パネル・幕板:シナ生地CL仕上げ
|
■備考
|
最近では、展示会や百貨店の催し会場でしか見ることが出来ないハイニッチ什器のご紹介です。
自立式なのでとても便利だと好評らしいけど、オリジナルショップにはお薦めしません。
しかし、店舗設計するうえに大変必要な什器であることは否めません。というのも、現在多くの店舗での壁面は、ここから来てますから。
このスチールパイプで組まれたフレームは、極々シンプルであって、決して商品の邪魔はしません。
ただ、貧弱に見えるので、前述したように個性的なショップでは、敬遠されます。
私の経験では、むかし百貨店に存在した平場での配置が多かったように感じます。私的には大変お世話になった什器のひとつです。
大した説明は無いにしろよければ、
続きを見てください。
頑張ってます!↓ ↓ ↓
デザインランキング
にほんブログ村
●スポンサードリンク

いきなりの拡大図ですが、上記の手法はかなり過去のものとなりますが、
基本照明が乏しかった時代には重宝した什器のひとつです。
もちろん商品を照らして演出を向上する目的ですが、今考えてみると
ほんとパッとしなかったのも感じますね。
それに比べ、今の店舗什器はどこをとっても過去の遺物となった仕様は存在しません。
私も過去の人になってしまったので、この什器を見ると郷愁に浸りますよ。(誰がやねん!笑い)
この図面を見てすぐに照明器具が眼に入りませんか?
エースラインなんてものを使っている時代です。ショボいのが丸わかりです。(ここも笑)
しかし、しかしですよ!この
ハイニッチ什器は、今見るととてもショボい什器ですが、現存する今のショップの壁面を造る上での要素がいっぱい詰まってました。
例えば、この
ハイニッチ什器の両サイドに帆立を立てることを想像してください!それに立ち上がりの少ない欄間なども付け加えてください。
どうです>?この敬遠されてた什器にちょっと手入れて、もちろん仕様も変えてすれば、どのような店舗でも使用可能な什器になると思いませんか?
まあ、もともと什器などは商品を入れる器でしかありませんからね。私思うに、クライアントの要望や店舗デザイナーが個性を注入し、肉付けをしているだけであって、真の目的は商品を入れる器なのです。
かなり脱線したようです。申し訳ありません。
ただ、今の店舗を見ていると、全てとは言いませんが、ちょっと逸脱しているものも感じますもので、この場を借りてひと言申し上げた次第です。
什器とは基本機能さえ網羅すれば、後はデザインを施すか否かをしっかり考えることこそ大切なことと感じます。
長々とありがとうございます。
頑張ってます!↓ ↓ ↓
デザインランキング
にほんブログ村