リタイヤした平凡な図面屋です。仕事から解放されて日々のんびり気楽に暮らしてます。そんな奴が好き勝手書いてます!

| ■サイズ | ■仕様 | |
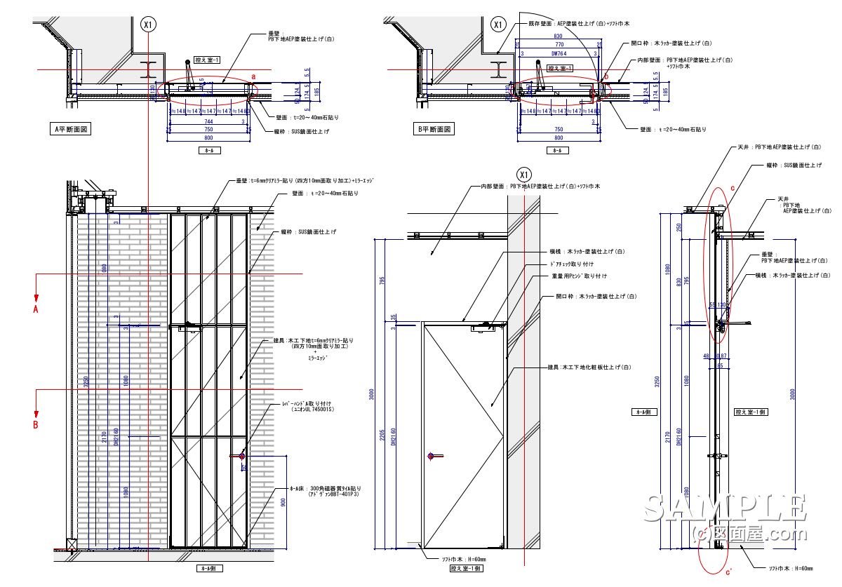
| W800×D185×H3250 図面参照 | 壁面:PB下地t=20~40石貼り 建具枠:木ラッカー塗装仕上げ+SUS 鏡面仕上 建具:木工下地t=6クリアミラー貼り(四方面取り) | |
| ■備考 作図日:2009.07.12 業態:結婚式場 | ||
この事例は、かつて結婚式場を手掛けたときに描いた建具図の実施図面です。かなりややこしい箇所だったので、今でもよく覚えています。
石貼り壁面とミラー建具、そして、ミラー建具の建具枠の納まりがとにかく大変でした。
何が大変だったかというと、本来は壁面意匠として提案されていた箇所に建具が必要になり、建具を含めた“形としての意匠”そのものが途中で変更になったことです。
結果として上記の図面に落ち着きましたが、見た目はそこそこ良くまとまったのでは……と、今になって感じています。いかがでしょうか。
今回は図面は2枚あります。少し長くなりますが、しっかり読んでくださいね。
では、続きをご覧ください。
それでは続きをご覧ください!
応援よろしくお願いします
↓ ↓ ↓![]()
デザインランキン
【作図として】

まず、木工建具の場合は、建具厚の設定に「反り」の問題がついて回ります。建具を厚くすれば反りは多少軽減されますが、その反面、重量が増えて扱いが難しくなります。
ミラーはミラーマットでフラットになるよう微調整できますが、建具自体が反っていると、その調整にも限界が出る場合があります。
そのため、製作前に建具業者さんと打ち合わせを行い、結果としてこの作図の通り、建具厚は40mmで決定しました。
次に、蝶番やヒンジについてです。
建具に蝶番やヒンジは付きものですが、建具の高さや重量によって仕様は変わってきます。建具の厚みを増やすと重量が増えるため、その重さに耐えうる金物を選定しなければなりません。
目安としては、一般的なW900×H2000mm程度の建具であれば、普通丁番でも問題ありません。
しかし、これよりサイズが大きい場合や重量が増す場合は、ピアノ丁番やPヒンジを検討する必要があります。
普通丁番でも取り付け枚数を増やして対応する手もありますが、設計段階での見極めが大切です。
また、鉄扉やテンパードア、特大サイズの建具の場合は、フロアヒンジが多用されます。詳細や納まりの考え方は、上部の2枚目の図面事例で確認してください。
最後に、今回のような石貼り壁と建具(枠)の取り合いは、店舗設計でも頻繁に出てくるメニューです。
納まりの基本として、しっかり覚えておくと役に立ちます。余田和でした!
応援よろしくお願いします
↓ ↓ ↓![]()
デザインランキン