リタイヤした平凡な図面屋です。仕事から解放されて日々のんびり気楽に暮らしてます。そんな奴が好き勝手書いてます!

| ■サイズ | ■仕様 | |
| W784×D89.5×H2500 図面参照 | 開口枠:20×40スチール角パイプ古美色仕上げ 建具枠:木工ウレタン塗装仕上げ 建具:木工ウレタン塗装仕上げ | |
| ■備考 *作図:2006.07 【WJ_000】は、木製建具の略語(wooden-joinery) | ||
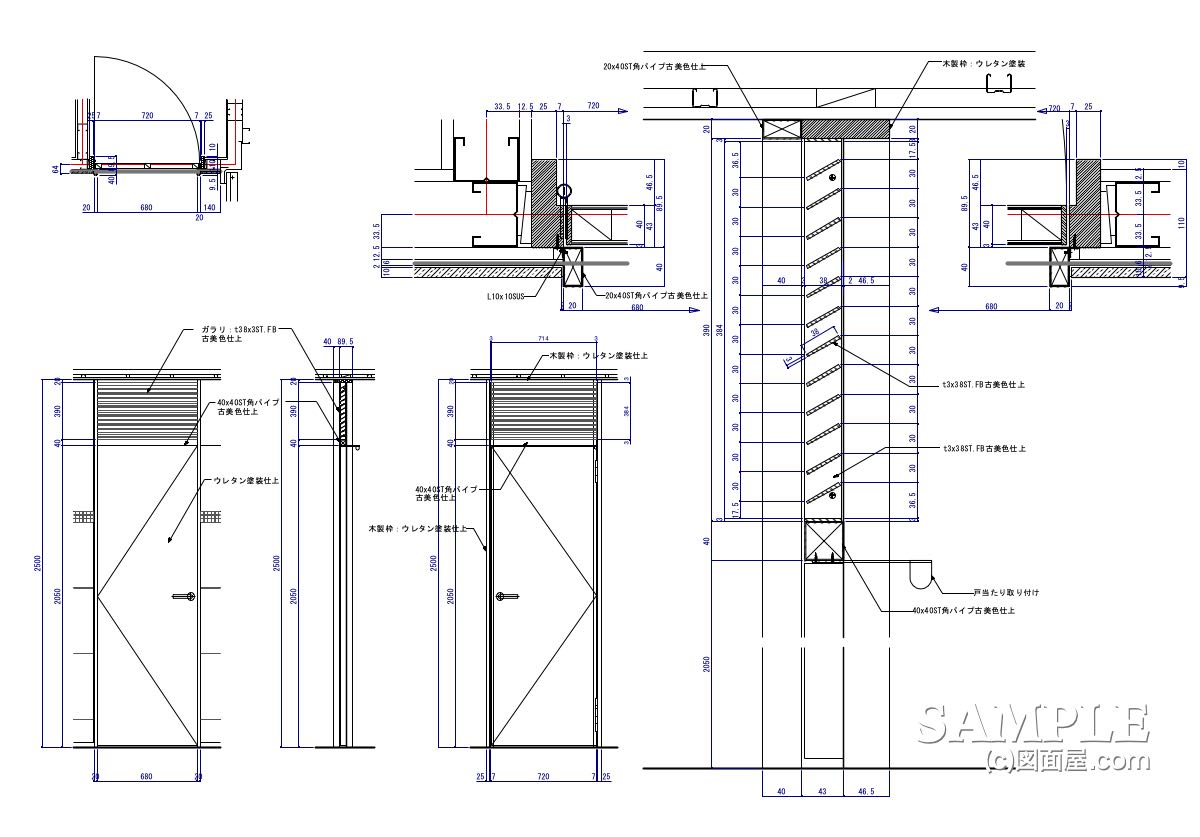
【作図解説】
この作図事例は、換気を目的としたガラリ付き木製建具の姿図と断面図です。
壁面の仕上げがタイルのため、建具の前にスチール角パイプ組の開口枠を取り付けています。
その結果、建具の木枠は表側から見えず、スチールの開口枠が擬似的な建具枠として機能する構成になっています。
上部のガラリは、枠と羽根をスチールFBで構成し、現場で溶接したうえでビス固定する仕様にしています。
こうすることで強度を確保しながら、見た目もすっきりとした仕上がりになります。
それでは続きをどうぞ!
応援、宜しくお願いします!
↓ ↓ ↓![]()
デザインランキング
【作図ポイント】
この建具のポイントは、通気性と意匠性の両立にあります。特に建具上部のガラリ枠と扉上端の取り合い寸法を明確にしておくことが大切です。
羽根の角度やビスの位置、開口寸法などを正確に示しておくと、現場での取付がスムーズに進みます。
また、この構成ではドアチェックが取り付けられないため、建具上部に戸当たりをビス固定して開き止めを確実にしています。
こうした細かな配慮が、現場での施工トラブルを防ぐポイントになります。
【私感とまとめ】
一見するとシンプルな建具ですが、タイル仕上げとの取り合いやガラリ部の構造など、見えない部分に工夫が詰まっています。
特にタイル壁との組み合わせでは、開口枠の見付けラインをどう整えるかがデザイン面でのポイントとなります。
全体としては、納まりの整ったバランスの良い構成です。
施工精度が仕上がりに直結するタイプの事例なので、寸法精度と取付順序の管理をしっかり行うことが重要です。
それでは続きをどうぞ!
応援、宜しくお願いします!
↓ ↓ ↓![]()
デザインランキング
ま〜
図面屋ま〜では、若き同業者の方々のお役に立てるよう、今まで描き続けてきた図面資料やデザイン資料などをお伝えしております。 ただ、掲載している作図資料はあくまで資料であり、全ての店舗や施工に当てはまるものではありません。ですから、参考程度の資料とお考えください。
Powered by ライブドアブログ